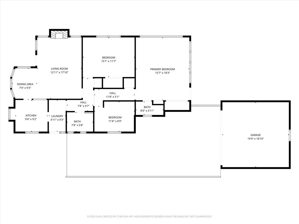
Discover this North Monrovia gem where mid-century charm meets modern comfort. Located on a beautiful tree-lined street in North Monrovia, just minutes from the newly reopened Canyon Park, this traditional home has been lovingly cared for by only two owners since 1947. If you’ve been searching for a Monrovia home for sale with timeless character, this is the one that feels like “home” the moment you arrive. Step inside from the inviting front porch to a bright, spacious living room filled with natural light. Original hardwood floors, a classic brick fireplace, and large picture windows make this space both warm and welcoming. The adjacent dining area features a sunny bay window, and the remodeled kitchen offers the perfect blend of old and new, with custom wood cabinetry, stainless steel appliances, a garden window, recessed lighting, and a stylish tile backsplash.
The primary suite is a peaceful retreat, complete with chevron wood floors, built-in storage, and French doors that open to a large backyard – ideal for relaxing, gardening, or entertaining. The two additional bedrooms share a full bath that celebrates the home’s vintage roots with its original ceramic tile and cast-iron tub. Additional highlights include central air and heat, dual-pane windows, upgraded electrical, ceiling fans, laundry hookups, and a two-car detached garage. This is North Monrovia living at its best – close to hiking trails, nature, and just a short drive from Old Town Monrovia’s shops, restaurants, and community events. A rare opportunity to own a home with history, heart, and all the right updates for modern life.
(Some mages have been virtually staged.)
The primary suite is a peaceful retreat, complete with chevron wood floors, built-in storage, and French doors that open to a large backyard – ideal for relaxing, gardening, or entertaining. The two additional bedrooms share a full bath that celebrates the home’s vintage roots with its original ceramic tile and cast-iron tub. Additional highlights include central air and heat, dual-pane windows, upgraded electrical, ceiling fans, laundry hookups, and a two-car detached garage. This is North Monrovia living at its best – close to hiking trails, nature, and just a short drive from Old Town Monrovia’s shops, restaurants, and community events. A rare opportunity to own a home with history, heart, and all the right updates for modern life.
(Some mages have been virtually staged.)
Property Details
Price:
$1,085,000
MLS #:
AR25231712
Status:
Active
Beds:
3
Baths:
2
Type:
Single Family
Subtype:
Single Family Residence
Neighborhood:
639monrovia
Listed Date:
Oct 3, 2025
Finished Sq Ft:
1,303
Lot Size:
6,274 sqft / 0.14 acres (approx)
Year Built:
1947
See this Listing
Schools
School District:
Monrovia Unified
Middle School:
Clifton
High School:
Monrovia
Interior
Appliances
GR
Bathrooms
1 Full Bathroom, 1 Three Quarter Bathroom
Cooling
CA
Heating
CF
Laundry Features
IN
Exterior
Architectural Style
TRD
Community Features
SDW, STM, SL, FHL
Construction Materials
STC
Parking Spots
2
Financial
Map
Community
- Address375 N Canyon BL Monrovia CA
- CityMonrovia
- CountyLos Angeles
- Zip Code91016
Market Summary
Current real estate data for Single Family in Monrovia as of Dec 10, 2025
27
Single Family Listed
93
Avg DOM
366
Avg $ / SqFt
$925,271
Avg List Price
Property Summary
- 375 N Canyon BL Monrovia CA is a Single Family for sale in Monrovia, CA, 91016. It is listed for $1,085,000 and features 3 beds, 2 baths, and has approximately 1,303 square feet of living space, and was originally constructed in 1947. The current price per square foot is $833. The average price per square foot for Single Family listings in Monrovia is $366. The average listing price for Single Family in Monrovia is $925,271.
Similar Listings Nearby
375 N Canyon BL
Monrovia, CA




































