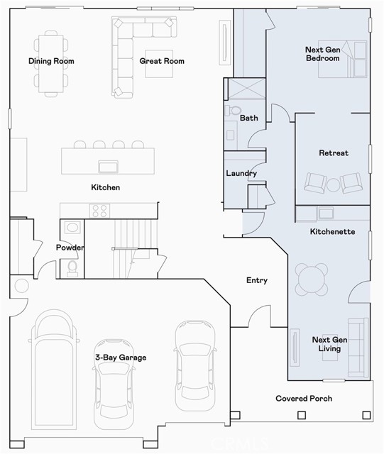
NEW CONSTRUCTION! Ready for Immediate move-in! Includes upgraded flooring! This two-story home showcases Lennar’s signature Next Gen® suite, ideal for multigenerational living with a separate entrance, living space, kitchenette, bedroom with retreat, bathroom and laundry. In the main home, the Great Room, kitchen and dining room are arranged among a convenient and contemporary open floorplan. Five bedrooms surround a versatile loft upstairs, including the luxe owner’s suite which is comprised of a restful bedroom, en-suite bathroom and walk-in closet.
South Shore is a collection of brand-new single-family homes for sale at the gated Rockport Ranch masterplan community in Menifee, CA. Residents enjoy exclusive access to great onsite amenities such as a swimming pool, park, picnic areas, BBQs, trails, a tot lot and lake. Plus, local amenities are just a short drive away including shopping at Menifee Countryside Marketplace, golf at the Menifee Lakes Country Club and outdoor recreation on Diamond Valley Lake.
South Shore is a collection of brand-new single-family homes for sale at the gated Rockport Ranch masterplan community in Menifee, CA. Residents enjoy exclusive access to great onsite amenities such as a swimming pool, park, picnic areas, BBQs, trails, a tot lot and lake. Plus, local amenities are just a short drive away including shopping at Menifee Countryside Marketplace, golf at the Menifee Lakes Country Club and outdoor recreation on Diamond Valley Lake.
Property Details
Price:
$907,360
MLS #:
SW25215116
Status:
Active
Beds:
5
Baths:
5
Type:
Single Family
Subtype:
Single Family Residence
Neighborhood:
srcar
Listed Date:
Oct 18, 2025
Finished Sq Ft:
4,134
Lot Size:
6,000 sqft / 0.14 acres (approx)
Year Built:
2025
See this Listing
Schools
School District:
Menifee Union
Interior
Appliances
DW, GD, MW, BIR, DO
Bathrooms
4 Full Bathrooms, 1 Half Bathroom
Cooling
CA
Heating
CF
Laundry Features
IR, IN
Exterior
Community Features
SDW, SL, SUB
Construction Materials
STC, FRM
Parking Spots
3
Roof
TLE
Security Features
SD, COD, GC
Financial
HOA Fee
$208
HOA Frequency
MO
Map
Community
- AddressWaterline DR Lot 34 Menifee CA
- CityMenifee
- CountyRiverside
- Zip Code92584
Market Summary
Current real estate data for Single Family in Menifee as of Oct 29, 2025
361
Single Family Listed
35
Avg DOM
254
Avg $ / SqFt
$507,958
Avg List Price
Property Summary
- Waterline DR Lot 34 Menifee CA is a Single Family for sale in Menifee, CA, 92584. It is listed for $907,360 and features 5 beds, 5 baths, and has approximately 4,134 square feet of living space, and was originally constructed in 2025. The current price per square foot is $219. The average price per square foot for Single Family listings in Menifee is $254. The average listing price for Single Family in Menifee is $507,958.
Similar Listings Nearby
Waterline DR Lot 34
Menifee, CA

























