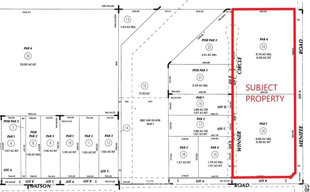
Excellent residential development opportunity in the City of Menifee. This land is located on Menifee Road cross Watson Road. RR1 zoning flat and side by side double lots in a rapid developing neighborhood close Freeway 215 and Highway 74. Menifee is one of the fastest growing cities in Southern California, it is in Riverside County. The lots are surrounding by single family houses, newer tract homes, Heritage High School and Romoland Library just a few minutes away. APN 329-320-020 (6.69 acres) and 329-320-023 (6.7 acres) total +- 13.39 acres, the price is for both lots and need to be sold together. According to current City land use category, RR1 zoning may allow one detached residence of 1 acre and may allow small scale home-based business operations; buyer to verify relevant information and desired future use with City. The land does not have address yet. Marketing flyer attached.
Property Details
Price:
$1,080,000
MLS #:
WS25165826
Status:
Active
Beds:
0
Baths:
0
Type:
Land
Neighborhood:
srcar
Listed Date:
Jul 23, 2025
Lot Size:
583,268 sqft / 13.39 acres (approx)
See this Listing
Schools
Interior
Exterior
Community Features
RUR
Financial
Map
Community
- AddressMenifee Rd/Watson Rd Lot E Menifee CA
- CityMenifee
- CountyRiverside
- Zip Code92585
Market Summary
Property Summary
- Menifee Rd/Watson Rd Lot E Menifee CA is a Land for sale in Menifee, CA, 92585. It is listed for $1,080,000 and features 13 acres.
Similar Listings Nearby
Menifee Rd/Watson Rd Lot E
Menifee, CA




