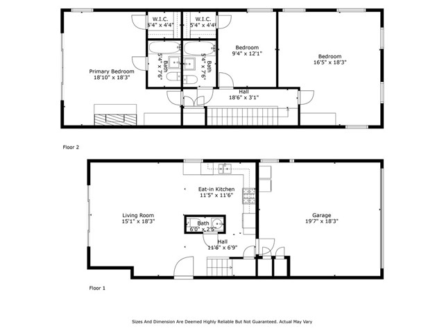
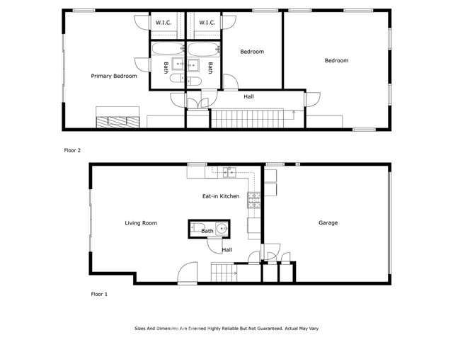
Welcome to 2708 Pine Avenue, a beautifully designed two-story home nestled in the heart of Manhattan Beach. The main level features a seamless flow between the spacious living room and a sleek kitchen, ideal for both everyday living and entertaining. Sliding doors lead directly to a private backyard oasis complete with a sparkling pool—perfect for relaxing or hosting gatherings. A convenient half bath and direct access to the attached garage complete the downstairs layout.
Upstairs, you’ll find three generously sized bedrooms, including a full bathroom off the hallway. The true highlight is the expansive primary retreat, featuring its own fireplace, a private balcony for enjoying ocean breezes, and a luxurious ensuite bathroom. This home blends comfort and coastal charm in one of the South Bay’s most desirable neighborhoods.
Upstairs, you’ll find three generously sized bedrooms, including a full bathroom off the hallway. The true highlight is the expansive primary retreat, featuring its own fireplace, a private balcony for enjoying ocean breezes, and a luxurious ensuite bathroom. This home blends comfort and coastal charm in one of the South Bay’s most desirable neighborhoods.
Property Details
Price:
$2,499,000
MLS #:
SB25237088
Status:
Active
Beds:
3
Baths:
3
Type:
Single Family
Subtype:
Single Family Residence
Neighborhood:
143
Listed Date:
Oct 16, 2025
Finished Sq Ft:
1,520
Lot Size:
2,801 sqft / 0.06 acres (approx)
Year Built:
1967
See this Listing
Schools
School District:
Manhattan Unified
Interior
Bathrooms
2 Full Bathrooms, 1 Half Bathroom
Cooling
SEE
Heating
SEE
Laundry Features
SEE
Exterior
Community Features
SL
Parking Spots
2
Financial
Map
Community
- AddressPine Lot 16 Manhattan Beach CA
- CityManhattan Beach
- CountyLos Angeles
- Zip Code90266
Market Summary
Current real estate data for Single Family in Manhattan Beach as of Oct 29, 2025
98
Single Family Listed
41
Avg DOM
883
Avg $ / SqFt
$2,759,287
Avg List Price
Property Summary
- Pine Lot 16 Manhattan Beach CA is a Single Family for sale in Manhattan Beach, CA, 90266. It is listed for $2,499,000 and features 3 beds, 3 baths, and has approximately 1,520 square feet of living space, and was originally constructed in 1967. The current price per square foot is $1,644. The average price per square foot for Single Family listings in Manhattan Beach is $883. The average listing price for Single Family in Manhattan Beach is $2,759,287.
Similar Listings Nearby
Pine Lot 16
Manhattan Beach, CA


















