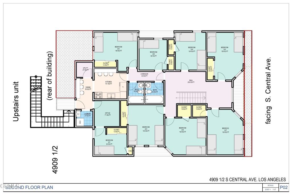
This is an upstairs Single Room Occupancy layout for 8-bedroom, 2-bathroom, a community kitchen and community laundry area. We prefer a master lease agreement with Lessee on-site management service for a Non-Profit organization. Completely updated with permits in 2021. Central A/C and Heat with a single zone for all individual rooms and common areas. Rear parking is available behind an automated gate off of a rear alley for 2 cars.
Property Details
Price:
$8,000
MLS #:
P1-24521
Status:
Active
Beds:
8
Baths:
2
Type:
Single Family
Subtype:
Commercial/Residential
Listed Date:
Oct 13, 2025
Finished Sq Ft:
2,551
Lot Size:
5,911 sqft / 0.14 acres (approx)
Year Built:
1905
See this Listing
Schools
Interior
Appliances
RF, GO, HOD, TW
Bathrooms
1 Full Bathroom, 1 Three Quarter Bathroom
Cooling
CA
Flooring
LAM, WOOD
Heating
FA, CF
Laundry Features
AR, CM, IR, IN, STK, DINC, WINC
Exterior
Community Features
SDW, SL, CRB
Parking Spots
2
Security Features
SS, SD, WSEC, AG, COD, PRKG, FS
Financial
Map
Community
- Address1/2 S Central AV Los Angeles CA
- SubdivisionOther
- CityLos Angeles
- CountyLos Angeles
- Zip Code90011
Subdivisions in Los Angeles
Market Summary
Current real estate data for Single Family in Los Angeles as of Dec 11, 2025
3,171
Single Family Listed
70
Avg DOM
698
Avg $ / SqFt
$1,459,058
Avg List Price
Property Summary
- Located in the Other subdivision, 1/2 S Central AV Los Angeles CA is a Single Family for sale in Los Angeles, CA, 90011. It is listed for $8,000 and features 8 beds, 2 baths, and has approximately 2,551 square feet of living space, and was originally constructed in 1905. The current price per square foot is $3. The average price per square foot for Single Family listings in Los Angeles is $698. The average listing price for Single Family in Los Angeles is $1,459,058.
Similar Listings Nearby
1/2 S Central AV
Los Angeles, CA


















































