There are multiple listings for this address:
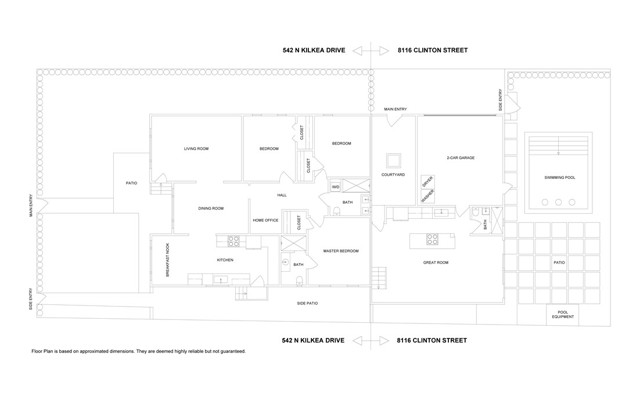
**Huge Price Adjustment** A rare opportunity to own two fully renovated homes on one of the largest parcels in Beverly Grove! Set behind privacy hedges, this exceptional property features two standalone residences, each with private entrances. Ideal for owner-occupants, multi-generational living, or investors. 542 N Kilkea Drive is a single-story Spanish-style home with cathedral ceilings, three spacious bedrooms, ensuite master bathroom, plus a second full bathroom. Inside, enjoy a bright open layout and warm, inviting living space ideal for both entertaining and everyday comfort. The front door opens to a private yard with lush landscaping and a newly poured patio, perfect for outdoor dining or quiet morning coffee. 8116 Clinton Street is a two-story home with two sizable bedrooms, ensuite master bathroom, plus two additional full bathrooms, and custom closets. Take in a view of the Hollywood Hills from the master bedroom, relax on the balcony and watch a beautiful California sunset, or take a seat in the entry courtyard and unwind under the canopy of the beautiful tree that serves as the centerpiece to the home’s entrance. In the rear, take a dip in the newly built, fully heated saltwater pool with in-water barstools and waterfall, surrounded by lush green lawn. A two-car garage serves the Clinton residence; the Kilkea residence features ample street parking. Both homes have been fully transformed, including updated electrical and plumbing systems, energy-efficient windows, new kitchens with Samsung stainless steel appliances, central AC/heat, tankless water heaters, smart-home enabled, security suite with CCTV, and restored original hardwood flooring. Both homes are delivered vacant and are income-ready with high rental potential. Live in one, rent the other – or lease both and hold a premier dual-income asset in one of LA’s most walkable zones. The Melrose Place Farmers Market, Melrose Trading Post, Grove, Beverly Center, and Fairfax District are within minutes. Don’t miss this one-of-a-kind property offering space, privacy, and flexibility.
Property Details
Price:
$2,850,000
MLS #:
SR25146034
Status:
Active
Beds:
5
Baths:
5
Type:
Single Family
Subtype:
Duplex
Neighborhood:
c19
Listed Date:
Oct 22, 2025
Finished Sq Ft:
3,376
Lot Size:
7,129 sqft / 0.16 acres (approx)
Year Built:
1926
See this Listing
Schools
School District:
Los Angeles Unified
Elementary School:
Rosewood
Middle School:
Bancroft
High School:
Fairfax Senior
Interior
Appliances
DW, MW, ES, EO, TW, WHU
Bathrooms
5 Full Bathrooms
Cooling
CA
Heating
CF
Laundry Features
IN, ICL, DINC, WINC
Exterior
Architectural Style
SPN, TRD
Community Features
SDW, URB, CRB, BIKI
Other Structures
TL
Parking Spots
2
Roof
ASP, CMP, SHN
Financial
Map
Community
- AddressN Kilkea DR Lot 1 Los Angeles CA
- CityLos Angeles
- CountyLos Angeles
- Zip Code90048
Subdivisions in Los Angeles
- 1788
- 6525 La Mirada
- 6790
- Adams-Normandie
- Angeleno Heights
- ARLINGTON HEIGHTS TERRACE SUBDIVISION NO. 1
- Athens Subdivision
- Avalon Gardens
- Baldwin Hills
- Beachwood Canyon Estates
- Bel Air Crest
- Bel Air Park
- Brentwood Country Estates
- Bronson Homes
- Crestwood Hills
- Ela Hills Tr
- Gramercy Park
- Harvard Heights
- Higgins Building
- Highland Park Extension
- Kentwood
- LA PALOMA ADD
- LaBrea Vista
- Lake Hollywood Estates
- Las Collinas Heights
- LE MOYNE TERRACES TRACT NO. 2
- Metropolis Prop
- Metropolis Tower 1
- Mid-City Heights
- Montecito Heights
- MountainGate Country Club / The Ridge
- Mulholland Corridor
- Nelavida
- Not Applicable – 1007242
- Not Applicable-105
- Other – 0011
- OTHR
- Pickford 4
- Rampart Heights
- Sunset Terrace
- Tapestry
- The Los Feliz Oaks Neighborhood
- The Ritz Carlton Residences Los Angeles
- TRACT #8330 LOT 59
- Tract No 3643 / Hollywood Hills East
- TRACT NO. 9741
- University Heights
- W Hollywood Residences
- West Adams
- West Hollywood West
- Wisendanger\’s Prospect Park Addition
Market Summary
Current real estate data for Single Family in Los Angeles as of Nov 03, 2025
2,760
Single Family Listed
76
Avg DOM
584
Avg $ / SqFt
$2,005,226
Avg List Price
Property Summary
- N Kilkea DR Lot 1 Los Angeles CA is a Single Family for sale in Los Angeles, CA, 90048. It is listed for $2,850,000 and features 5 beds, 5 baths, and has approximately 3,376 square feet of living space, and was originally constructed in 1926. The current price per square foot is $844. The average price per square foot for Single Family listings in Los Angeles is $584. The average listing price for Single Family in Los Angeles is $2,005,226.
Similar Listings Nearby
N Kilkea DR Lot 1
Los Angeles, CA
**Huge Price Adjustment** A rare opportunity to own two fully renovated homes on one of the largest parcels in Beverly Grove! Set behind privacy hedges, this exceptional property features two standalone residences, each with private entrances. Ideal for owner-occupants, multi-generational living, or investors. 542 N Kilkea Drive is a single-story Spanish-style home with cathedral ceilings, three spacious bedrooms, ensuite master bathroom, plus a second full bathroom. Inside, enjoy a bright open layout and warm, inviting living space ideal for both entertaining and everyday comfort. The front door opens to a private yard with lush landscaping and a newly poured patio, perfect for outdoor dining or quiet morning coffee. 8116 Clinton Street is a two-story home with two sizable bedrooms, ensuite master bathroom, plus two additional full bathrooms, and custom closets. Take in a view of the Hollywood Hills from the master bedroom, relax on the balcony and watch a beautiful California sunset, or take a seat in the entry courtyard and unwind under the canopy of the beautiful tree that serves as the centerpiece to the home’s entrance. In the rear, take a dip in the newly built, fully heated saltwater pool with in-water barstools and waterfall, surrounded by lush green lawn. A two-car garage serves the Clinton residence; the Kilkea residence features ample street parking. Both homes have been fully transformed, including updated electrical and plumbing systems, energy-efficient windows, new kitchens with Samsung stainless steel appliances, central AC/heat, tankless water heaters, smart-home enabled, security suite with CCTV, and restored original hardwood flooring. Both homes are delivered vacant and are income-ready with high rental potential. Live in one, rent the other – or lease both and hold a premier dual-income asset in one of LA’s most walkable zones. The Melrose Place Farmers Market, Melrose Trading Post, Grove, Beverly Center, and Fairfax District are within minutes. Don’t miss this one-of-a-kind property offering space, privacy, and flexibility.
Property Details
Price:
$2,850,000
MLS #:
SR25147024
Status:
Active
Beds:
0
Baths:
0
Type:
Single Family
Subtype:
Duplex
Neighborhood:
c19
Listed Date:
Oct 22, 2025
Lot Size:
7,129 sqft / 0.16 acres (approx)
Year Built:
1926
See this Listing
Schools
School District:
Los Angeles Unified
Elementary School:
Rosewood
Middle School:
Bancroft
High School:
Fairfax Senior
Interior
Appliances
DW, MW, ES, EO, TW, WHU
Bathrooms
5 Full Bathrooms
Cooling
CA
Heating
CF
Laundry Features
IN, ICL, DINC, WINC
Exterior
Architectural Style
SPN, TRD
Community Features
SDW, URB, CRB, BIKI
Other Structures
TL
Parking Spots
2
Roof
ASP, CMP, SHN
Financial
Map
Community
- AddressN Kilkea DR Lot 1 Los Angeles CA
- CityLos Angeles
- CountyLos Angeles
- Zip Code90048
Subdivisions in Los Angeles
- 1788
- 6525 La Mirada
- 6790
- Adams-Normandie
- Angeleno Heights
- ARLINGTON HEIGHTS TERRACE SUBDIVISION NO. 1
- Athens Subdivision
- Avalon Gardens
- Baldwin Hills
- Beachwood Canyon Estates
- Bel Air Crest
- Bel Air Park
- Brentwood Country Estates
- Bronson Homes
- Crestwood Hills
- Ela Hills Tr
- Gramercy Park
- Harvard Heights
- Higgins Building
- Highland Park Extension
- Kentwood
- LA PALOMA ADD
- LaBrea Vista
- Lake Hollywood Estates
- Las Collinas Heights
- LE MOYNE TERRACES TRACT NO. 2
- Metropolis Prop
- Metropolis Tower 1
- Mid-City Heights
- Montecito Heights
- MountainGate Country Club / The Ridge
- Mulholland Corridor
- Nelavida
- Not Applicable – 1007242
- Not Applicable-105
- Other – 0011
- OTHR
- Pickford 4
- Rampart Heights
- Sunset Terrace
- Tapestry
- The Los Feliz Oaks Neighborhood
- The Ritz Carlton Residences Los Angeles
- TRACT #8330 LOT 59
- Tract No 3643 / Hollywood Hills East
- TRACT NO. 9741
- University Heights
- W Hollywood Residences
- West Adams
- West Hollywood West
- Wisendanger\’s Prospect Park Addition
Market Summary
Current real estate data for Single Family in Los Angeles as of Nov 03, 2025
2,760
Single Family Listed
76
Avg DOM
584
Avg $ / SqFt
$2,005,226
Avg List Price
Property Summary
- N Kilkea DR Lot 1 Los Angeles CA is a Single Family for sale in Los Angeles, CA, 90048. It is listed for $2,850,000 and features 0 beds, 0 baths, and has approximately 0 square feet of living space, and was originally constructed in 1926. The average price per square foot for Single Family listings in Los Angeles is $584. The average listing price for Single Family in Los Angeles is $2,005,226.







































































