Prime Hillside Lot with Previously Approved Plans, Renderings & Rare Grandfathered Variances — Build with Confidence
A rare opportunity to acquire a hillside lot with prior city approvals, previously approved plans, extensive technical documentation, and strong development potential, located in a neighborhood where new construction homes sell for $1.6M to $2.7M, and zoned for the highly sought-after Mount Washington Elementary School.
The property includes a detailed Soil and Geology Investigation Report (2002) prepared by TechnoSoil Inc., analyzing soil composition, slope stability, and geotechnical conditions for a proposed single-family residence. TriTech Engineering Associates provided a current topographic survey (2021) with a transferable DWG file for AutoCAD. Previous grading documents and previously approved site/building plans give buyers confidence that the property is highly buildable. The seller also has current development experience, further demonstrating reliability and expertise.
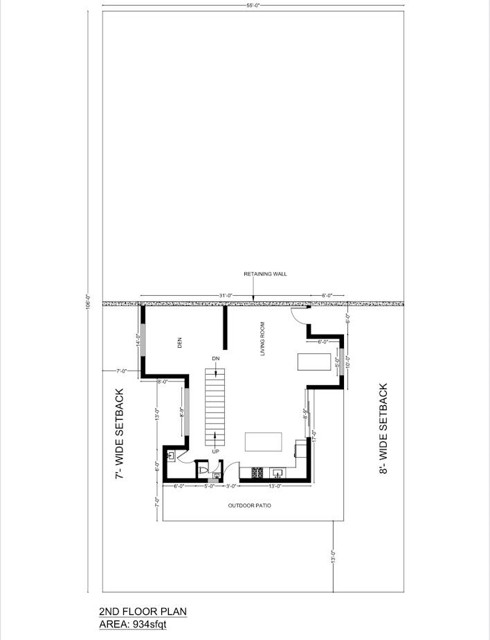
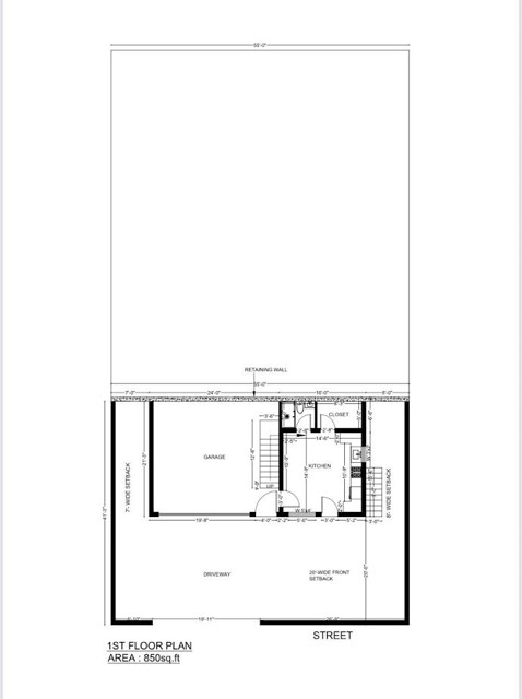
Professional renderings illustrate potential builds, including a single-family residence with a separate ADU (~2,950 sq. ft.), highlighting the property’s full development potential.
Approved under Municipal Code Section 12.27-B, the lot features a variance permitting a reduced side yard and flexible setbacks within the R20 hillside zone — rarely granted under current regulations, offering valuable grandfathered advantages.
While the buyer must verify current approvals, the combination of prior studies, previously approved plans, renderings, recent survey, and the seller’s development experience provides a strong foundation for a smooth permitting and construction process.
Set in a scenic hillside location with access to the highly sought-after Mount Washington Elementary School, this lot offers a rare combination of build readiness, grandfathered flexibility, ADU potential, and strong neighborhood market value — ideal for builders, investors, or homeowners seeking a custom residence with confidence and minimal uncertainty
A rare opportunity to acquire a hillside lot with prior city approvals, previously approved plans, extensive technical documentation, and strong development potential, located in a neighborhood where new construction homes sell for $1.6M to $2.7M, and zoned for the highly sought-after Mount Washington Elementary School.
The property includes a detailed Soil and Geology Investigation Report (2002) prepared by TechnoSoil Inc., analyzing soil composition, slope stability, and geotechnical conditions for a proposed single-family residence. TriTech Engineering Associates provided a current topographic survey (2021) with a transferable DWG file for AutoCAD. Previous grading documents and previously approved site/building plans give buyers confidence that the property is highly buildable. The seller also has current development experience, further demonstrating reliability and expertise.
Professional renderings illustrate potential builds, including a single-family residence with a separate ADU (~2,950 sq. ft.), highlighting the property’s full development potential.
Approved under Municipal Code Section 12.27-B, the lot features a variance permitting a reduced side yard and flexible setbacks within the R20 hillside zone — rarely granted under current regulations, offering valuable grandfathered advantages.
While the buyer must verify current approvals, the combination of prior studies, previously approved plans, renderings, recent survey, and the seller’s development experience provides a strong foundation for a smooth permitting and construction process.
Set in a scenic hillside location with access to the highly sought-after Mount Washington Elementary School, this lot offers a rare combination of build readiness, grandfathered flexibility, ADU potential, and strong neighborhood market value — ideal for builders, investors, or homeowners seeking a custom residence with confidence and minimal uncertainty
Property Details
Price:
$365,000
MLS #:
SB25254800
Status:
Active
Beds:
0
Baths:
0
Type:
Land
Neighborhood:
680
Listed Date:
Nov 6, 2025
Lot Size:
5,906 sqft / 0.14 acres (approx)
See this Listing
Schools
Interior
Exterior
Community Features
SL, SUB, CRB, FHL, MTN, HIKI, BIKI, DGP
Financial
Map
Community
- AddressJessica DR Lot 10 Los Angeles CA
- CityLos Angeles
- CountyLos Angeles
- Zip Code90065
Subdivisions in Los Angeles
- 1788
- 6525 La Mirada
- 6790
- Adams-Normandie
- Angeleno Heights
- ARLINGTON HEIGHTS TERRACE SUBDIVISION NO. 1
- Athens Subdivision
- Avalon Gardens
- Baldwin Hills
- Beachwood Canyon Estates
- Bel Air Crest
- Bel Air Park
- Brentwood Country Estates
- Bronson Homes
- Crestwood Hills
- Ela Hills Tr
- Gramercy Park
- Harvard Heights
- Higgins Building
- Highland Park Extension
- Kentwood
- LA PALOMA ADD
- LaBrea Vista
- Lake Hollywood Estates
- Las Collinas Heights
- LE MOYNE TERRACES TRACT NO. 2
- Metropolis Prop
- Metropolis Tower 1
- Mid-City Heights
- Montecito Heights
- MountainGate Country Club / The Ridge
- Mulholland Corridor
- Nelavida
- Not Applicable – 1007242
- Not Applicable-105
- Other – 0011
- OTHR
- Pickford 4
- Rampart Heights
- Sunset Terrace
- Tapestry
- The Los Feliz Oaks Neighborhood
- The Ritz Carlton Residences Los Angeles
- TRACT #8330 LOT 59
- Tract No 3643 / Hollywood Hills East
- TRACT NO. 9741
- University Heights
- W Hollywood Residences
- West Adams
- West Hollywood West
- Wisendanger\’s Prospect Park Addition
Market Summary
Current real estate data for Land in Los Angeles as of Nov 07, 2025
84
Land Listed
80
Avg DOM
$763,326
Avg List Price
Property Summary
- Jessica DR Lot 10 Los Angeles CA is a Land for sale in Los Angeles, CA, 90065. It is listed for $365,000 and features 0 acres.
Similar Listings Nearby
Jessica DR Lot 10
Los Angeles, CA















