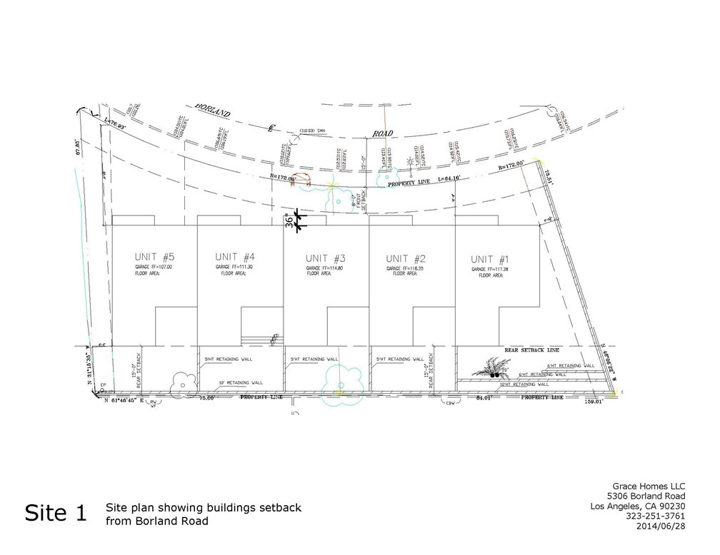
Prime development opportunity in the heart of El Sereno, just minutes from Downtown Los Angeles, Cal State LA, and the San Gabriel Valley. This combined 10,432 SF site (APNs: 5221-006-026 and 5221-006-027) previously secured City-approved Vesting Tentative Tract Map entitlements for a 5-unit townhome-style condominium project—featuring 2 units of 4-bedroom, 4-bath + loft and 3 units of 3-bedroom, 3-bath + loft, each with an attached 2-car garage. Although the entitlement has since expired, it may be renewed, offering developers a valuable head start in a high-demand residential market. Ideally located within walking distance to Cal State LA and offering convenient access to major freeways, schools, parks, and public transportation, this infill site sits at the gateway between Northeast Los Angeles and the San Gabriel Valley, presenting an excellent opportunity to deliver much-needed housing in a thriving, well-connected
Property Details
Price:
$349,000
MLS #:
AR25143824
Status:
Active
Beds:
0
Baths:
0
Type:
Land
Neighborhood:
621elsereno
Listed Date:
Sep 20, 2025
Lot Size:
10,432 sqft / 0.24 acres (approx)
See this Listing
Schools
Interior
Exterior
Community Features
SL
Financial
Map
Community
- Address5306 Borland RD Los Angeles CA
- CityLos Angeles
- CountyLos Angeles
- Zip Code90032
Subdivisions in Los Angeles
Market Summary
Current real estate data for Land in Los Angeles as of Dec 10, 2025
144
Land Listed
149
Avg DOM
$1,255,333
Avg List Price
Property Summary
- 5306 Borland RD Los Angeles CA is a Land for sale in Los Angeles, CA, 90032. It is listed for $349,000 and features 0 acres.
Similar Listings Nearby
5306 Borland RD
Los Angeles, CA






































