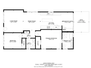
Tucked away in the serene and highly sought-after Franklin Hills neighborhood, just steps from the iconic Shakespeare Bridge, 3950 Franklin Avenue is a versatile home that offers a rare blend of privacy, space, and convenience. The residence features a spacious, flat backyard—an uncommon find in the hills—making it perfect for entertaining during LA’s long summers and mild winters. Inside, the home offers 3 bedrooms and 3.5 bathrooms in total. The main residence features 2 bedrooms and 2.5 baths, while a fully permitted attached Junior ADU provides an additional 1 bed/1 bath—ideal for guests, extended family, or rental income. Peekaboo views of the Griffith Observatory framed by treetops bring a sense of tranquility and connection to nature. Enjoy fresh avocados and lemons year-round from mature fruit trees, or simply relax outdoors surrounded by lush greenery that offers a peaceful escape from city life. Features include engineered wood flooring, new central HVAC & ducts, new mini split in JADU, tankless water heater, 200 amp panel, new windows, new electrical re-wire throughout the house, newer plumbing, cement plaster shower walls and more. Driveway parking for two cars. Located just a 15-minute stroll across the historic Shakespeare Bridge, you’ll find all the charm and convenience of Hillhurst Avenue—home to beloved local spots like Alcove, Little Dom’s, All Time, Encanto, and Jeni’s Ice Cream. Frequent hikes in nearby Griffith Park, and easy access to Los Feliz Village, make this home perfect for anyone seeking both serenity and a vibrant community lifestyle. Ideally positioned just minutes to Silver Lake, Atwater Village, Virgil Village, and Hollywood—this is a rare opportunity to own a peaceful retreat in one of the city’s most coveted neighborhoods.
Property Details
Price:
$1,675,000
MLS #:
WS25224477
Status:
Active
Beds:
3
Baths:
4
Type:
Single Family
Subtype:
Single Family Residence
Neighborhood:
637losfeliz
Listed Date:
Sep 25, 2025
Finished Sq Ft:
1,647
Lot Size:
4,227 sqft / 0.10 acres (approx)
Year Built:
1947
See this Listing
Schools
School District:
Los Angeles Unified
Interior
Appliances
DW, RF, _6BS
Bathrooms
3 Full Bathrooms, 1 Half Bathroom
Cooling
CA
Heating
CF
Laundry Features
ICL
Exterior
Community Features
SL, URB, PARK, HIKI
Financial
Map
Community
- Address3950 Franklin AV Los Angeles CA
- CityLos Angeles
- CountyLos Angeles
- Zip Code90027
Subdivisions in Los Angeles
Market Summary
Current real estate data for Single Family in Los Angeles as of Jan 20, 2026
2,289
Single Family Listed
54
Avg DOM
928
Avg $ / SqFt
$1,933,037
Avg List Price
Property Summary
- 3950 Franklin AV Los Angeles CA is a Single Family for sale in Los Angeles, CA, 90027. It is listed for $1,675,000 and features 3 beds, 4 baths, and has approximately 1,647 square feet of living space, and was originally constructed in 1947. The current price per square foot is $1,017. The average price per square foot for Single Family listings in Los Angeles is $928. The average listing price for Single Family in Los Angeles is $1,933,037.
Similar Listings Nearby
3950 Franklin AV
Los Angeles, CA











































