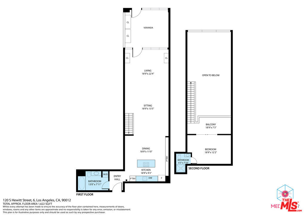
Welcome to Gallery Lofts, a live work community located in the heart of Arts District. This private oversized loft creates the perfect creative sanctuary for artists, musicians, and other like minded individuals. The expansive living area features soaring 16 foot ceilings, polished concrete flooring, an exposed brick wall, and 200 sf private patio that is not included in the total interior square footage. A rare amenity that offers so many possibilities. Also on the first floor is a spa-like full bath and gourmet kitchen with granite countertops, stainless steel appliances, and plenty of built in storage space. Walk up the floating staircase to the primary with bright en-suite bath, and an an option for extra privacy provided by the sliding barn doors. Before entering the primary there is ample space on the mezzanine for a home office or exercise area overlooking your spacious lower level. Experience all of Arts District’s bustling galleries, restaurants, and nightlife. Community features gated security entrances, outdoor atrium, fountains, and a secure mailroom. One assigned parking space with convenient and direct access to the private patio entrance. HOA dues include high speed internet, water, gas, trash, sewer, and community security system.
Property Details
Price:
$999,000
MLS #:
25622823
Status:
Active
Beds:
1
Baths:
2
Type:
Condo
Subtype:
Condominium
Neighborhood:
c23metropolitan
Listed Date:
Dec 1, 2025
Finished Sq Ft:
1,582
Total Sq Ft:
1,582
Lot Size:
14,532 sqft / 0.33 acres (approx)
Year Built:
2012
See this Listing
Schools
Interior
Appliances
DW, GD, MW, RF
Bathrooms
2 Full Bathrooms
Cooling
CA
Flooring
TILE
Heating
CF
Laundry Features
DINC, WINC
Exterior
Architectural Style
CNT
Parking Spots
1
Security Features
CRD, GC
Financial
HOA Fee
$644
HOA Frequency
MO
Map
Community
- Address120 S Hewitt ST #6 Los Angeles CA
- CityLos Angeles
- CountyLos Angeles
- Zip Code90012
Subdivisions in Los Angeles
Market Summary
Current real estate data for Condo in Los Angeles as of Jan 20, 2026
554
Condo Listed
65
Avg DOM
766
Avg $ / SqFt
$1,232,429
Avg List Price
Property Summary
- 120 S Hewitt ST #6 Los Angeles CA is a Condo for sale in Los Angeles, CA, 90012. It is listed for $999,000 and features 1 beds, 2 baths, and has approximately 1,582 square feet of living space, and was originally constructed in 2012. The current price per square foot is $631. The average price per square foot for Condo listings in Los Angeles is $766. The average listing price for Condo in Los Angeles is $1,232,429.
Similar Listings Nearby
120 S Hewitt ST #6
Los Angeles, CA













































