There are multiple listings for this address:
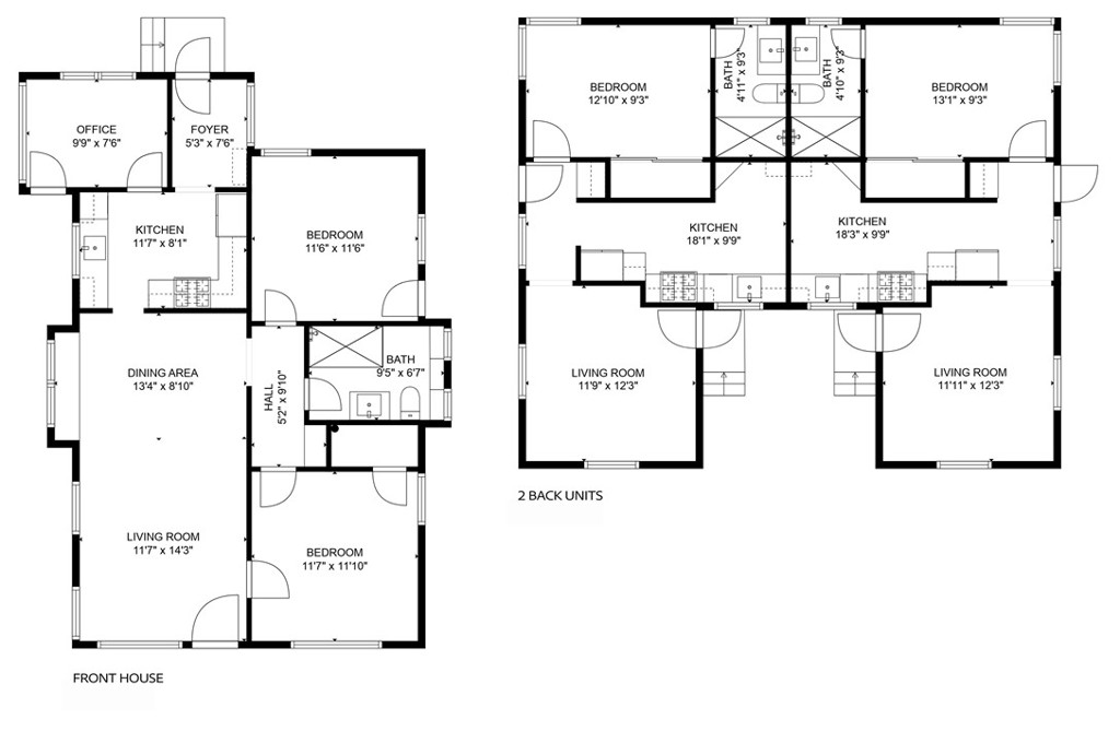
Live in the front & rent out the back two units! Turnkey triplex offering strong rental potential in a prime Long Beach location. The property includes a charming front California bungalow with (1) 2-bedroom, 1-bath + office unit, along with (2) 1-bedroom, 1-bath units in the rear. All three units have been meticulously remodeled with modern kitchens featuring shaker cabinetry, quartz countertops, stainless steel appliances, and spa-like bathrooms with designer tile, updated vanities, and contemporary fixtures. Interiors boast wide-plank luxury vinyl flooring, fresh paint, new lighting, in-unit laundry, and high, squared-off baseboards that give a clean, elevated finish. Significant system upgrades include reinforced subfloors and updated foundation work on both the front & rear structures. The front house also received complete electrical rewiring, a brand new panel, and updated gas and water lines. The electrical panels in the rear units have been updated to accommodate modern appliances. Exterior enhancements include a newly poured concrete driveway, fresh sod with a new irrigation system & modern fencing that enhances privacy and curb appeal. With all major renovations complete and ample off-street parking, this beautifully upgraded triplex is ready for immediate occupancy and positioned for strong long-term performance. Best of all, you can achieve top-market rents from day one.
Property Details
Price:
$1,350,000
MLS #:
DW25122568
Status:
Active Under Contract
Beds:
0
Baths:
0
Type:
Single Family
Subtype:
Triplex
Subdivision:
Eastside ES
Neighborhood:
3eastsidecirclearea
Listed Date:
Oct 11, 2025
Total Sq Ft:
1,972
Lot Size:
6,067 sqft / 0.14 acres (approx)
Year Built:
1919
See this Listing
Schools
Interior
Cooling
NO
Flooring
WOOD
Heating
WL
Laundry Features
IN
Exterior
Community Features
SDW, SL, CRB
Parking Spots
3
Financial
Map
Community
- Address765 Loma AV Long Beach CA
- SubdivisionEastside (ES)
- CityLong Beach
- CountyLos Angeles
- Zip Code90804
Subdivisions in Long Beach
- Ackerfield Condos AC
- Alamitos Beach AB
- Alamitos Heights AH
- Artcraft Manor AM
- Atlantic Plaza APZ
- Bay Harbour BYH
- Belmont Heights BH
- Belmont Shore BSD
- Belmont Shore Condos BSC
- Bixby Highlands BXH
- Bixby Hill BBH
- Bixby Knolls BK
- Bixby Terrace BBT
- Bixby Terrace BT
- Bixby Village BV
- Bluff Park BLF
- California Heights CH
- Carson Park/Long Beach CLB
- Cherry Manor CM
- Circle CA
- College Park CPZ
- Cooper Arms CPA
- Country Club Gardens CCG
- Country Club Villa CCV
- Country Square CSQ
- Crest Gardens CRST
- Crown Pointe CPT
- Del Lago DL
- Downtown DT
- Eastside ES
- Eldorado ELD
- International Towers ITT
- Island Village ISV
- Junipero Gardens JPG
- Kensington Green KG
- La Marina Estates LME
- Lafayette Building LF
- Lakewood Village LKVL
- Lakewood Village LVD
- Lindenwood LWD
- Los Altos/North of Fwy LNF
- Los Altos/South of Fwy LSF
- Los Cerritos LC
- Lynn Manor LNM
- Marina Pacifica MRP
- Mobile Estates ME
- Naples NA
- New Bixby NB
- North Long Beach NLB
- Ocean House OCH
- Park Estates PE
- Park Ocean PO
- Peninsula PI
- Plaza North of Spring PZN
- Poly High PH
- Queens Surf QS
- Queens View Condos QVC
- Rancho RNC
- Ridgewood Heights RH
- Royal Palms RP
- Saint Regis SRG
- Signal Hill SH
- Signal View SGV
- South of Conant Northeast SNE
- South of Conant Southeast SSE
- South of Conant Southwest SSW
- Spinnaker Bay SY
- Stoney Brook Villas ST
- The Galaxy Towers TGT
- The Lakes TLK
- Versailles VRS
- Villa Riviera VLR
- Westside/North of Willow WNW
- Westside/South of Willow WSW
- Willmore District WM
- Willow Ridge WD
- Wrigley Area WR
- Wrigley Heights WH
- X-100s X1
Market Summary
Current real estate data for Single Family in Long Beach as of Dec 16, 2025
889
Single Family Listed
59
Avg DOM
500
Avg $ / SqFt
$993,315
Avg List Price
Property Summary
- Located in the Eastside (ES) subdivision, 765 Loma AV Long Beach CA is a Single Family for sale in Long Beach, CA, 90804. It is listed for $1,350,000 and features 0 beds, 0 baths, and has approximately 0 square feet of living space, and was originally constructed in 1919. The average price per square foot for Single Family listings in Long Beach is $500. The average listing price for Single Family in Long Beach is $993,315.
Similar Listings Nearby
765 Loma AV
Long Beach, CA
Live in the front & rent out the back two units! Turnkey triplex offering strong rental potential in a prime Long Beach location. The property includes a charming front California bungalow with (1) 2-bedroom, 1-bath + office unit, along with (2) 1-bedroom, 1-bath units in the rear. All three units have been meticulously remodeled with modern kitchens featuring shaker cabinetry, quartz countertops, stainless steel appliances, and spa-like bathrooms with designer tile, updated vanities, and contemporary fixtures. Interiors boast wide-plank luxury vinyl flooring, fresh paint, new lighting, in-unit laundry, and high, squared-off baseboards that give a clean, elevated finish. Significant system upgrades include reinforced subfloors and updated foundation work on both the front & rear structures. The front house also received complete electrical rewiring, a brand new panel, and updated gas and water lines. The electrical panels in the rear units have been updated to accommodate modern appliances. Exterior enhancements include a newly poured concrete driveway, fresh sod with a new irrigation system & modern fencing that enhances privacy and curb appeal. With all major renovations complete and ample off-street parking, this beautifully upgraded triplex is ready for immediate occupancy and positioned for strong long-term performance. Best of all, you can achieve top-market rents from day one.
Property Details
Price:
$4,000
MLS #:
DW25191636
Status:
Active
Beds:
2
Baths:
1
Type:
Single Family
Subtype:
Triplex
Subdivision:
Eastside ES
Neighborhood:
3eastsidecirclearea
Listed Date:
Sep 12, 2025
Finished Sq Ft:
946
Total Sq Ft:
1,972
Lot Size:
6,067 sqft / 0.14 acres (approx)
Year Built:
1919
See this Listing
Schools
Interior
Cooling
NO
Flooring
WOOD
Heating
WL
Laundry Features
IN
Exterior
Community Features
SDW, SL, CRB
Parking Spots
3
Financial
Map
Community
- Address765 Loma AV Long Beach CA
- SubdivisionEastside (ES)
- CityLong Beach
- CountyLos Angeles
- Zip Code90804
Subdivisions in Long Beach
- Ackerfield Condos AC
- Alamitos Beach AB
- Alamitos Heights AH
- Artcraft Manor AM
- Atlantic Plaza APZ
- Bay Harbour BYH
- Belmont Heights BH
- Belmont Shore BSD
- Belmont Shore Condos BSC
- Bixby Highlands BXH
- Bixby Hill BBH
- Bixby Knolls BK
- Bixby Terrace BBT
- Bixby Terrace BT
- Bixby Village BV
- Bluff Park BLF
- California Heights CH
- Carson Park/Long Beach CLB
- Cherry Manor CM
- Circle CA
- College Park CPZ
- Cooper Arms CPA
- Country Club Gardens CCG
- Country Club Villa CCV
- Country Square CSQ
- Crest Gardens CRST
- Crown Pointe CPT
- Del Lago DL
- Downtown DT
- Eastside ES
- Eldorado ELD
- International Towers ITT
- Island Village ISV
- Junipero Gardens JPG
- Kensington Green KG
- La Marina Estates LME
- Lafayette Building LF
- Lakewood Village LKVL
- Lakewood Village LVD
- Lindenwood LWD
- Los Altos/North of Fwy LNF
- Los Altos/South of Fwy LSF
- Los Cerritos LC
- Lynn Manor LNM
- Marina Pacifica MRP
- Mobile Estates ME
- Naples NA
- New Bixby NB
- North Long Beach NLB
- Ocean House OCH
- Park Estates PE
- Park Ocean PO
- Peninsula PI
- Plaza North of Spring PZN
- Poly High PH
- Queens Surf QS
- Queens View Condos QVC
- Rancho RNC
- Ridgewood Heights RH
- Royal Palms RP
- Saint Regis SRG
- Signal Hill SH
- Signal View SGV
- South of Conant Northeast SNE
- South of Conant Southeast SSE
- South of Conant Southwest SSW
- Spinnaker Bay SY
- Stoney Brook Villas ST
- The Galaxy Towers TGT
- The Lakes TLK
- Versailles VRS
- Villa Riviera VLR
- Westside/North of Willow WNW
- Westside/South of Willow WSW
- Willmore District WM
- Willow Ridge WD
- Wrigley Area WR
- Wrigley Heights WH
- X-100s X1
Market Summary
Current real estate data for Single Family in Long Beach as of Dec 16, 2025
889
Single Family Listed
59
Avg DOM
500
Avg $ / SqFt
$993,315
Avg List Price
Property Summary
- Located in the Eastside (ES) subdivision, 765 Loma AV Long Beach CA is a Single Family for sale in Long Beach, CA, 90804. It is listed for $4,000 and features 2 beds, 1 baths, and has approximately 946 square feet of living space, and was originally constructed in 1919. The current price per square foot is $4. The average price per square foot for Single Family listings in Long Beach is $500. The average listing price for Single Family in Long Beach is $993,315.























































