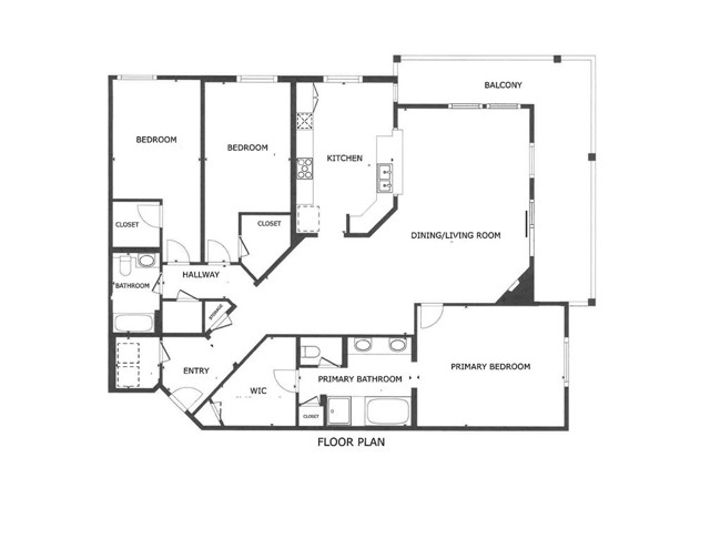
1000 E Ocean Blvd – Coastal Luxury Meets Everyday Comfort. Welcome to beachfront living at its finest. This rare, corner-unit oceanfront condo offers panoramic views, refreshing ocean breezes, and the soothing sound of waves from your wraparound balcony. Turnkey and thoughtfully designed, the spacious 3-bedroom, 2-bath residence blends elegance with coastal charm. Enjoy an open-concept layout with ocean views from the living room, Kitchen and Bedrooms. Gourmet kitchen—featuring a large center island, new appliances, and breakfast bar seating, ideal for entertaining. The sunlit living room boasts oversized south-facing windows, a cozy fireplace, and direct access to the balcony. The generously sized primary suite is a true retreat with large windows, a walk-in designer closet, and a luxurious en suite bath complete with a soaking tub and separate shower. Two additional bedrooms and a full bath are set privately on the opposite side of the unit, along with a dedicated laundry room offering extra storage. Located on the amenity-rich pool level, the home provides convenient access to elevators and building features, including: Two secure parking spaces on the first level, Private storage space, Rooftop lounge and pool with sweeping ocean views, Fully equipped gym, Community pool, game room, and newly renovated recreation room with kitchen and office space. Step outside and stroll directly onto the sand from this impeccably maintained building, and embrace the Southern California beachfront lifestyle you’ve been dreaming of.
Property Details
Price:
$1,900,000
MLS #:
PW25154777
Status:
A
Beds:
3
Baths:
2
Type:
Single Family
Subtype:
Condominium
Subdivision:
Alamitos Beach AB
Neighborhood:
4
Listed Date:
Jul 24, 2025
Finished Sq Ft:
2,052
Lot Size:
37,404 sqft / 0.86 acres (approx)
Year Built:
2003
See this Listing
Schools
School District:
Long Beach Unified
Interior
Appliances
DW, GD, IM, MW, RF, WLR, GS, VEF, WHU
Bathrooms
2 Full Bathrooms
Cooling
CA
Flooring
STON, CARP
Heating
CF
Laundry Features
GAS, IR, IN, DINC, WH, WINC
Exterior
Architectural Style
CNT
Community Features
SDW, SL, URB, CRB
Parking Spots
2
Security Features
SD, COD, FSDS, FS, GC
Financial
HOA Fee
$990
HOA Frequency
MO
Map
Community
- AddressE Ocean BL #416 Lot 1 Long Beach CA
- SubdivisionAlamitos Beach (AB)
- CityLong Beach
- CountyLos Angeles
- Zip Code90802
Subdivisions in Long Beach
- Ackerfield Condos AC
- Alamitos Beach AB
- Alamitos Heights AH
- Artcraft Manor AM
- Bay Harbour BYH
- Belmont Heights BH
- Belmont Park BP
- Belmont Shore
- Belmont Shore BSD
- Bixby Knolls BK
- Bixby Riviera BBR
- Bixby Terrace BBT
- Bixby Terrace BT
- Bixby Village BV
- Bluff Park BLF
- California Heights CH
- Carson Park/Long Beach CLB
- Cedarhurst Apartments CDH
- Circle CA
- College Park CPZ
- College Park Estates CPS
- Cooper Arms CPA
- Country Club Gardens CCG
- Country Club manor CCM
- Country Club Villa CCV
- Crown Pointe CPT
- D\’Orleans DOR
- Downtown DT
- Eastside ES
- El Capitan ELC
- Eldorado ELD
- Genesis GNS
- Hacienda Heights HHT
- International Towers ITT
- Island Village ISV
- La Marina Estates
- Lafayette Building LF
- Lakewood City/Long Beach LCB
- Lakewood Mutuals LKMU
- Lakewood Village LKVL
- Lakewood Village LVD
- Los Altos/North of Fwy LNF
- Los Altos/South of Fwy LSF
- Los Cerritos LC
- Lynn Manor LNM
- Marina Pacifica MRP
- Mobile Estates ME
- Mystic Cove MC
- Naples NA
- New Bixby NB
- North Long Beach
- North Long Beach NLB
- Ocean House OCH
- Ocean Terrace OCT
- Pacific Shores PCS
- Park Estates PE
- Park Ocean PO
- Peninsula PI
- Pine Villas PVL
- Plaza North of Spring PZN
- Plaza South of Spring PZS
- Poly High PH
- Queens Surf QS
- Queens View Condos QVC
- Rancho RNC
- Ridgewood Heights RH
- Royal Palms RP
- South of Conant Northwest SNW
- South of Conant Southeast SSE
- South of Conant Southwest SSW
- Spinnaker Bay SY
- Stoney Brook Villas ST
- Stratford Square SQQ
- The Galaxy Towers TGT
- The Lakes TLK
- Villa Riviera VLR
- Virginia Country Club VCC
- Westside/North of Willow WNW
- Westside/South of Willow WSW
- Willmore District WM
- Wrigley Area WR
- Wrigley Heights WH
- X-100s X1
Market Summary
Current real estate data for Single Family in Long Beach as of Oct 30, 2025
580
Single Family Listed
35
Avg DOM
541
Avg $ / SqFt
$950,026
Avg List Price
Property Summary
- Located in the Alamitos Beach (AB) subdivision, E Ocean BL #416 Lot 1 Long Beach CA is a Single Family for sale in Long Beach, CA, 90802. It is listed for $1,900,000 and features 3 beds, 2 baths, and has approximately 2,052 square feet of living space, and was originally constructed in 2003. The current price per square foot is $926. The average price per square foot for Single Family listings in Long Beach is $541. The average listing price for Single Family in Long Beach is $950,026.
Similar Listings Nearby
E Ocean BL #416 Lot 1
Long Beach, CA












































