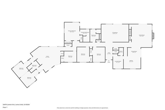
Spacious single-story home on 1.9 acres in the south hills of Loma Linda with PANORAMIC VIEWS of the mountains, valley, and city lights. Built in 1960 with almost 3600 square feet of living space and a total of 6 bedrooms and 3 bathrooms. Large living room and separate family room with fireplaces, kitchen with island connects to the laundry room which could double as a butler’s pantry. The main house has 4 bedrooms and 2 full bathrooms, and the attached CASITA has a large living area with a kitchenette, a three-quarter bathroom, and two bedrooms connected by retractable doors. It also has a separate entrance, water heater, and a NEW Lennox 2 Ton rooftop HVAC with ducting was installed in 2019. Main house A/C coil was replaced in 2023, and the condenser was replaced in 2024. Private driveway leads to an oversized detached 2-car garage with a finished room that would make a great studio, hobby room, or office. There is an additional detached garage with potential for a workshop or large vehicle storage. Over $60K in gas and water line replacement done in June of 2025. This home has lots of character and is ready for the next owner to update and customize!
Property Details
Price:
$1,198,600
MLS #:
IG25251269
Status:
Active
Beds:
6
Baths:
3
Type:
Single Family
Subtype:
Single Family Residence
Neighborhood:
267
Listed Date:
Oct 31, 2025
Finished Sq Ft:
3,595
Lot Size:
82,764 sqft / 1.90 acres (approx)
Year Built:
1960
See this Listing
Schools
School District:
Redlands Unified
Interior
Appliances
DW, GD, ES, WHU
Bathrooms
2 Full Bathrooms, 1 Three Quarter Bathroom
Cooling
CA, SEE
Flooring
TILE, CARP
Heating
CF
Laundry Features
IR, IN, DINC, WINC
Exterior
Community Features
FHL
Parking Spots
2
Financial
Map
Community
- Address24479 Lawton Lot 12 Loma Linda CA
- CityLoma Linda
- CountySan Bernardino
- Zip Code92354
Market Summary
Current real estate data for Single Family in Loma Linda as of Nov 26, 2025
36
Single Family Listed
43
Avg DOM
197
Avg $ / SqFt
$481,169
Avg List Price
Property Summary
- 24479 Lawton Lot 12 Loma Linda CA is a Single Family for sale in Loma Linda, CA, 92354. It is listed for $1,198,600 and features 6 beds, 3 baths, and has approximately 3,595 square feet of living space, and was originally constructed in 1960. The current price per square foot is $333. The average price per square foot for Single Family listings in Loma Linda is $197. The average listing price for Single Family in Loma Linda is $481,169.
Similar Listings Nearby
24479 Lawton Lot 12
Loma Linda, CA

























































