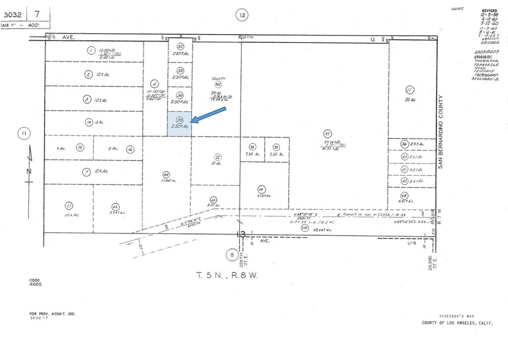
Affordable level 2.5 Acres, A2 zoned, located 3 parcels south of Ave U, and less than a mile from the Los Angeles/San Bernardino County Line. This parcel has a Certificate of Exception which will save on future development costs, and access to Ave U provided by a recorded Declaration and Grant of Easements that just needs cutting in. Great Opportunity! *Buyer to make their own independent investigations regarding Zoning & General Plan Designations, Environmental & Hazard Zones, Access & Development Costs, Availability & Costs of Utilities.
Property Details
Price:
$11,000
MLS #:
SR25151837
Status:
Active
Baths:
0
Type:
Land
Neighborhood:
llollano
Listed Date:
Jul 7, 2025
Lot Size:
108,900 sqft / 2.50 acres (approx)
See this Listing
Schools
Interior
Exterior
Community Features
Rural
Financial
Map
Community
- Address0 Avenue U4 & 257th St E 3032007035 Llano CA
- NeighborhoodLLO – Llano
- CityLlano
- CountyLos Angeles
- Zip Code93544
Market Summary
Property Summary
- 0 Avenue U4 & 257th St E 3032007035 Llano CA is a Land for sale in Llano, CA, 93544. It is listed for $11,000 and features 3 acres.
Similar Listings Nearby
0 Avenue U4 & 257th St E 3032007035
Llano, CA


























