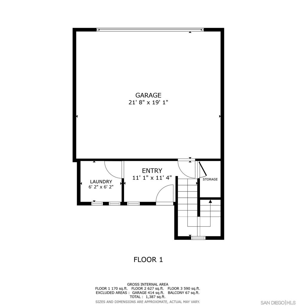
BRAND NEW 2024 CONSTRUCTION. Welcome to Golden Avenue, your Golden opportunity to buy a brand new home! A functional floor plan offers a two car, direct-entry garage and a patio/deck space on all three levels. As you enter through the garage you are greeted with a dedicated laundry room and separate storage room. The main floor includes your fully equipped kitchen featuring stainless steel appliances, quartz countertops, modern cabinetry and a pantry. On your main level you also have a spacious living and dining area as well as one bedroom and one full bathroom. As you make your way to the top floor you will fall in love with your expansive primary bedroom featuring a private deck, dual vanity and walk in closet. Additional 3rd bedroom and full 3rd bathroom on the top floor as well. If you’re looking for a quiet neighborhood but still want the convenience of a short drive to downtown San Diego and the beautiful beaches this home is for you! Additional features include stunning views, low HOA, dual pane windows, recessed lighting, carpet and luxury vinyl plank flooring throughout. Buyer’s also have the ability to select builder upgrades to put their own personal touch on their new home before they move in.
Property Details
Price:
$664,000
MLS #:
250026946SD
Status:
Active
Beds:
3
Baths:
3
Type:
Townhouse
Subdivision:
Lemon Grove
Neighborhood:
91945lemongrove
Listed Date:
May 8, 2025
Finished Sq Ft:
1,407
Lot Size:
33,105 sqft / 0.76 acres (approx)
Year Built:
2024
See this Listing
Schools
Interior
Appliances
Dishwasher, Disposal, Microwave, ENERGY STAR Qualified Appliances, Freezer, Gas Cooktop, Gas Range
Bathrooms
3 Full Bathrooms
Cooling
Wall/Window Unit(s), ENERGY STAR Qualified Equipment
Heating
Natural Gas, ENERGY STAR Qualified Equipment
Laundry Features
Gas Dryer Hookup, Individual Room
Exterior
Association Amenities
Maintenance Grounds
Parking Spots
2.00
Roof
Rolled/Hot Mop
Financial
HOA Name
Golden Avenue HOA
Map
Community
- Address8180 Golden Ave Lemon Grove CA
- Neighborhood91945 – Lemon Grove
- SubdivisionLemon Grove
- CityLemon Grove
- CountySan Diego
- Zip Code91945
Subdivisions in Lemon Grove
Market Summary
Current real estate data for Townhouse in Lemon Grove as of Oct 22, 2025
19
Townhouse Listed
158
Avg DOM
474
Avg $ / SqFt
$671,316
Avg List Price
Property Summary
- Located in the Lemon Grove subdivision, 8180 Golden Ave Lemon Grove CA is a Townhouse for sale in Lemon Grove, CA, 91945. It is listed for $664,000 and features 3 beds, 3 baths, and has approximately 1,407 square feet of living space, and was originally constructed in 2024. The current price per square foot is $472. The average price per square foot for Townhouse listings in Lemon Grove is $474. The average listing price for Townhouse in Lemon Grove is $671,316.
Similar Listings Nearby
8180 Golden Ave
Lemon Grove, CA

















































