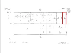
High-quality and buildable Hi Vista land parcel, unlike most others in the area! Public water (through LA County Waterworks) and power (SoCal Edison) are both available at the street! Sitting at the northeast corner of 200th St E and Ave F-8, within the small town of Hi Vista, this parcel is ready for building. There are many horse properties surrounding this parcel. Buildable parcels with water and power are rarely available in the east Antelope Valley. The street frontage on 200th St E allows for the property to be easily located and accessed, while the utilities being available will make construction very easy. This is a perfect location to install a mobile/modular home, or even build a custom home. This property is just north of the paved 200th St/Ave G intersection. This is simply an outstanding opportunity for a potential homeowner or custom home builder. Don’t miss out!
Property Details
Price:
$29,900
MLS #:
SR26035323
Status:
Active
Beds:
0
Baths:
0
Type:
Land
Neighborhood:
laclancaster
Listed Date:
Feb 17, 2026
Lot Size:
113,150 sqft / 2.60 acres (approx)
See this Listing
Schools
Interior
Exterior
Community Features
RUR, SUB
Financial
Map
Community
- AddressCorner Of 200th St E/Ave F-8 Lot 31 Lancaster CA
- CityLancaster
- CountyLos Angeles
- Zip Code93535
Market Summary
Property Summary
- Corner Of 200th St E/Ave F-8 Lot 31 Lancaster CA is a Land for sale in Lancaster, CA, 93535. It is listed for $29,900 and features 3 acres.
Similar Listings Nearby
Corner Of 200th St E/Ave F-8 Lot 31
Lancaster, CA





