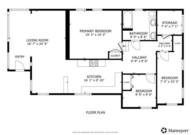
***Exceptional opportunity in the East Lake Zone—an expansive 4.27-acre waterfront property featuring two fully detached homes. Ideal for development, investment, or luxury lakefront living, this rare offering combines scenic views with a premier location in the desirable East Lake District.*** Situated near the scenic Lake Elsinore, this 4-parcel property spans over 4 acres and offers both functionality and potential for a variety of business or residential uses. The property features two units: a spacious 3-bedroom, 1-bathroom home and a separate 1-bedroom, 1-bathroom unit, each with its own laundry and separate meters. Currently undergoing remodeling with upgrades that include new kitchen, new windows, new bathroom, and new flooring. The sale also includes three vacant lots that are already utility-ready with gas, water, and electricity – ideal for adding additional units, building new structures, or tailoring the property to fit your business needs. With four APNs (373-270-005, 373-270-006, 373-270-007 and 373-270-009), this property is versatile enough to support uses such as a apartment unit, condominium, townhouse, bed & breakfast, restaurant, community center, daycare facility, fitness club, professional offices, financial institution, medical office, museum or hotel. Its prime location near the lake, with easy access to local amenities, makes it a perfect opportunity for an owner-user or small business operator seeking a unique property with room to grow. With utilities in place and multiple parcels included, the site provides a wide range of possibilities. This property offers extensive potential for residential, mixed-use, or commercial development, subject to City approval. Buyers should confirm current zoning and explore additional uses with the City to maximize investment opportunities. The property consists of four parcels identified as APNs 373-270-005, 373-270-006, 373-270-007, and 373-270-009, with individual lot sizes of approximately 60,113 sq ft, 43,560 sq ft, 43,560 sq ft, and 38,768 sq ft, respectively. Together, these parcels total about 4.27 acres.
Property Details
Price:
$1,980,000
MLS #:
PF25228574
Status:
Active
Beds:
4
Baths:
2
Type:
Single Family
Subtype:
Single Family Residence
Neighborhood:
srcar
Listed Date:
Oct 17, 2025
Finished Sq Ft:
1,600
Lot Size:
186,001 sqft / 4.27 acres (approx)
Year Built:
1946
See this Listing
Schools
School District:
Lake Elsinore Unified
Interior
Appliances
GO, GR
Bathrooms
2 Full Bathrooms
Cooling
NO
Flooring
TILE
Heating
NO
Laundry Features
GAS, WH
Exterior
Community Features
LAKE, FISH
Parking Spots
10
Roof
ASP
Financial
Map
Community
- AddressE Lakeshore Lot 4 Lake Elsinore CA
- CityLake Elsinore
- CountyRiverside
- Zip Code92530
Market Summary
Current real estate data for Single Family in Lake Elsinore as of Nov 01, 2025
244
Single Family Listed
45
Avg DOM
282
Avg $ / SqFt
$572,115
Avg List Price
Property Summary
- E Lakeshore Lot 4 Lake Elsinore CA is a Single Family for sale in Lake Elsinore, CA, 92530. It is listed for $1,980,000 and features 4 beds, 2 baths, and has approximately 1,600 square feet of living space, and was originally constructed in 1946. The current price per square foot is $1,238. The average price per square foot for Single Family listings in Lake Elsinore is $282. The average listing price for Single Family in Lake Elsinore is $572,115.
Similar Listings Nearby
E Lakeshore Lot 4
Lake Elsinore, CA



































