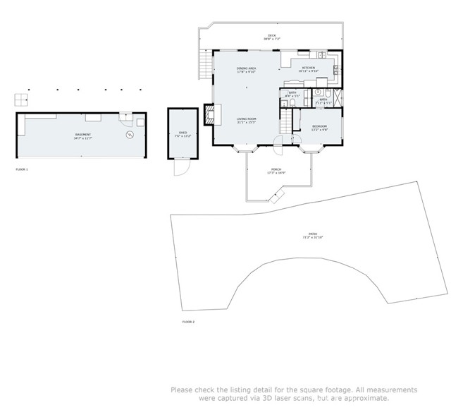
Pride of ownership throughout, as clean as they come!! Full lake rights to private Lake Arrowhead and remodeled in 2020 just before Sellers purchased. 1164 Klondike offers a light and bright ambiance with a uber functional floorplan: primary en suite and laundry room conveniently located on the entry level! The entire front of this 8,500 sq ft parcel is flat, boasting a massive 71’x31’ U shaped concrete driveway perfect for multiple guest parking, RV or boat parking! Enjoy family BBQs from a large rear deck beneath a canopy of Oak Trees and beautiful panoramic views of the North East high desert landscape. Plenty of storage via a shed directly accessed from driveway and basement currently set up as a workshop. Upon entry you are greeted with beautifully tiled flooring throughout the main living level. A soothing color palette blankets the walls and tongue and groove open beamed ceiling. Enjoy chilly winter nights nestled up next to a cozy river rock wood burning fireplace. Custom cabinetry offers plenty of storage within the spacious kitchen equipped with stainless appliances and breakfast bar top. LED lighting illuminates the tastefully selected hardware and lighting fixtures. Entry level offers a spacious primary en suite with ¾ bathroom, powder room bath/laundry room. Upstairs hosts 2 guest bedroom en suites(both with full baths) each with tall vaulted ceilings and cozy reading nook dormers. New roof and 96% HVAC system with central A/C installed when remodeled. Located off a quiet low traffic road Grass Valley Alley. There’s a staircase down to Klondike for more curbside parking/walk up access if needed. This property has been well loved by the Sellers and surely a front runner of its price range. Just in time for holidays in the mountains, schedule your private tour today!
Property Details
Price:
$574,500
MLS #:
IG25193444
Status:
Active
Beds:
3
Baths:
4
Type:
Single Family
Subtype:
Single Family Residence
Subdivision:
Arrowhead Woods AWHW
Neighborhood:
287aarrowheadwoods
Listed Date:
Oct 15, 2025
Finished Sq Ft:
1,666
Lot Size:
8,500 sqft / 0.20 acres (approx)
Year Built:
1990
See this Listing
Schools
School District:
Rim of the World
Interior
Appliances
DW, GD, RF, GR, HOD, WHU
Bathrooms
3 Full Bathrooms, 1 Half Bathroom
Cooling
CA, HE
Flooring
TILE, CARP
Heating
FA, GAS, CF
Laundry Features
IN
Exterior
Community Features
MTN, LAKE, FISH, WATE, HIKI, BIKI
Roof
CMP
Security Features
SD, COD
Financial
Map
Community
- Address1164 Klondike DR Lot 85 Lake Arrowhead CA
- SubdivisionArrowhead Woods (AWHW)
- CityLake Arrowhead
- CountySan Bernardino
- Zip Code92352
Subdivisions in Lake Arrowhead
Market Summary
Current real estate data for Single Family in Lake Arrowhead as of Dec 03, 2025
185
Single Family Listed
79
Avg DOM
399
Avg $ / SqFt
$984,989
Avg List Price
Property Summary
- Located in the Arrowhead Woods (AWHW) subdivision, 1164 Klondike DR Lot 85 Lake Arrowhead CA is a Single Family for sale in Lake Arrowhead, CA, 92352. It is listed for $574,500 and features 3 beds, 4 baths, and has approximately 1,666 square feet of living space, and was originally constructed in 1990. The current price per square foot is $345. The average price per square foot for Single Family listings in Lake Arrowhead is $399. The average listing price for Single Family in Lake Arrowhead is $984,989.
Similar Listings Nearby
1164 Klondike DR Lot 85
Lake Arrowhead, CA








































