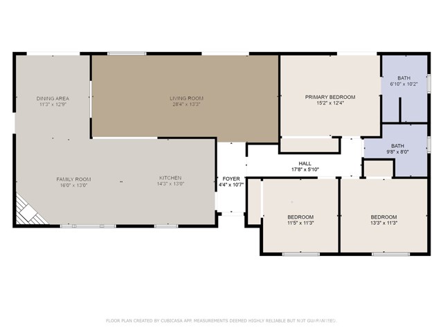
2 Homes – Discover this rare opportunity to own 2 homes on one expansive 0.78-acre lot, complete with horse facilities, a heated pool, and 50 paid-off solar panels to power both homes. FRONT HOME – 1,774 sqft. This beautifully remodeled 3-bed, 2-bath residence features a new 30-year cool roof, whole-house fan, Travertine tile floors, new carpet, fresh interior and exterior paint, upgraded interior doors, full replumb, and ceiling fans in the living room, dining room, and each bedroom. The stunning kitchen features custom Hickory cabinets, Corian countertops with full backsplash, Corian sink, Viking 6-burner gas cooktop with Proline hood vent, and high-end GE Profile appliances: double convection ovens, dishwasher, and refrigerator. The family room features a wood-burning fireplace. The dining room and living room each feature a sliding glass door to the backyard. The main bedroom includes mirrored closet doors, sliding glass door to the backyard, and a remodeled ensuite bathroom. Both remodeled bathrooms include oak pullman vanities with soft-close doors, quartz counters, and designer shower tiles. The main bath has a custom glass shower door, and the hall bath has a new enamel bathtub. The 2-car garage is drywalled and features custom cabinets, a workbench, and a dedicated laundry room with custom cabinets and laundry sink. The backyard feels like your own private resort with a heated pool and spa, rock waterfall and slide, shuffleboard court, regulation horseshoe pits, and a covered patio surrounded by lush landscaping and citrus trees. SECOND HOME – Built in 2008 with permits, this luxurious two-story residence is set back from the first home with its own automatic gated entrance and wrought iron fencing. The lower level features a 1,500 sqft 4-car garage with automatic garage doors, a half bath, a 15 ft-high bay for RV or boat storage, a double-wide bay, and a workshop bay with cabinets. Upstairs, the 1,000 sq. ft. living area features a guest bath, full kitchen, island with sink, pantry, living room, and a master bedroom retreat with large ensuite bath and walk-in closet. A large bonus room provides space for an office, storage, or guest bedroom. Outdoors, the property includes horse corrals, a 3-stall shed row barn, feed room, breezeway, 12’x12’ tack shed, 53’ storage container, shed with power, and mature avocado trees. Whether your goal is multi-generational living, generating rental income, or simply enjoying extra space, this estate has it all.
Property Details
Price:
$1,377,000
MLS #:
IV25216197
Status:
Active
Beds:
4
Baths:
5
Type:
Single Family
Subtype:
Single Family Residence
Neighborhood:
251
Listed Date:
Sep 17, 2025
Finished Sq Ft:
2,774
Lot Size:
33,977 sqft / 0.78 acres (approx)
Year Built:
1973
See this Listing
Schools
School District:
Jurupa Unified
Interior
Appliances
DW,   GS,  _6BS,   CO,   DO,   GWH,   HOD
Bathrooms
2 Full Bathrooms, 2 Three Quarter Bathrooms, 1 Half Bathroom
Cooling
CA,   WHF
Flooring
TILE,   CARP
Heating
CF
Laundry Features
GAS,   IR,   WH
Exterior
Architectural Style
RAN
Community Features
HRS
Exterior Features
LIT
Other Structures
SBL,   SH,   SEGAR
Parking Spots
6
Security Features
SD
Financial
Map
Community
- AddressBain ST Lot 20 Jurupa Valley CA
- CityJurupa Valley
- CountyRiverside
- Zip Code91752
Subdivisions in Jurupa Valley
Market Summary
Current real estate data for Single Family in Jurupa Valley as of Oct 31, 2025
104
Single Family Listed
54
Avg DOM
415
Avg $ / SqFt
$700,525
Avg List Price
Property Summary
- Bain ST Lot 20 Jurupa Valley CA is a Single Family for sale in Jurupa Valley, CA, 91752.  It is listed for $1,377,000 and features 4 beds, 5 baths, and has approximately 2,774 square feet of living space, and was originally constructed in 1973. The current price per square foot is $496.  The average price per square foot for Single Family listings in Jurupa Valley is $415.  The average listing price for Single Family in Jurupa Valley is $700,525.
Similar Listings Nearby
 Courtesy of SHINING STAR REAL ESTATE.  Disclaimer: All data relating to real estate for sale on this page comes from the Broker Reciprocity (BR) of the California Regional Multiple Listing Service. Detailed information about real estate listings held by brokerage firms other than  include the name of the listing broker. Neither the listing company nor  shall be responsible for any typographical errors, misinformation, misprints and shall be held totally harmless. The Broker providing this data believes it to be correct, but advises interested parties to confirm any item before relying on it in a purchase decision. Copyright 2025. California Regional Multiple Listing Service. All rights reserved.
 Courtesy of SHINING STAR REAL ESTATE.  Disclaimer: All data relating to real estate for sale on this page comes from the Broker Reciprocity (BR) of the California Regional Multiple Listing Service. Detailed information about real estate listings held by brokerage firms other than  include the name of the listing broker. Neither the listing company nor  shall be responsible for any typographical errors, misinformation, misprints and shall be held totally harmless. The Broker providing this data believes it to be correct, but advises interested parties to confirm any item before relying on it in a purchase decision. Copyright 2025. California Regional Multiple Listing Service. All rights reserved.Bain ST Lot 20
Jurupa Valley, CA

































































