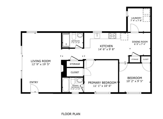
Experience the beauty of desert living at 5235 Border Ave, a stunning 2 bedroom, 2 bath residence with 1 bedroom and 1 bath ADU nestled in the heart of Joshua Tree. With almost 5 acres, this thoughtfully designed home offers the perfect blend of modern comfort, natural surroundings, and relaxed sophistication—ideal for a full-time residence, weekend getaway, or lucrative short-term rental investment. Step inside to a bright and airy open-concept living space, there is expansive windows frame sweeping views of the desert landscape. The spacious living room invites you to unwind by the cozy fireplace, creating the perfect setting for quiet evenings or entertaining guests. The gourmet chef’s kitchen features sleek finishes, ample cabinetry, and a seamless flow into the dining area—making it easy to host meals or enjoy a casual breakfast before a day of adventure in Joshua Tree National Park.
Each of the three bedrooms offers generous space and privacy, with the primary suite boasting its own ensuite bath and direct access to the patio for effortless indoor-outdoor living. The additional bathrooms are beautifully updated with modern touches, offering both style and functionality for family or guests. Step outside to your private desert oasis—complete with a spacious high covered patio, a dining area perfect for outdoor meals, a cozy fire pit to gather around under the stars, and a soothing jacuzzi for relaxing after a long day of exploration. The backyard is designed for entertaining, blending comfort and style while surrounded by panoramic mountain and desert views. Located just minutes from Joshua Tree National Park, local shops, and restaurants, this home perfectly captures the balance between tranquility and convenience. Whether you’re drawn by the natural beauty, artistic energy, or peaceful atmosphere, 5235 Border Ave offers a true desert sanctuary where every sunset feels like a masterpiece.
Each of the three bedrooms offers generous space and privacy, with the primary suite boasting its own ensuite bath and direct access to the patio for effortless indoor-outdoor living. The additional bathrooms are beautifully updated with modern touches, offering both style and functionality for family or guests. Step outside to your private desert oasis—complete with a spacious high covered patio, a dining area perfect for outdoor meals, a cozy fire pit to gather around under the stars, and a soothing jacuzzi for relaxing after a long day of exploration. The backyard is designed for entertaining, blending comfort and style while surrounded by panoramic mountain and desert views. Located just minutes from Joshua Tree National Park, local shops, and restaurants, this home perfectly captures the balance between tranquility and convenience. Whether you’re drawn by the natural beauty, artistic energy, or peaceful atmosphere, 5235 Border Ave offers a true desert sanctuary where every sunset feels like a masterpiece.
Property Details
Price:
$625,000
MLS #:
OC25240323
Status:
A
Beds:
3
Baths:
3
Type:
Single Family
Subtype:
Single Family Residence
Neighborhood:
dc612
Listed Date:
Oct 26, 2025
Finished Sq Ft:
1,100
Lot Size:
209,088 sqft / 4.80 acres (approx)
Year Built:
1960
See this Listing
Schools
School District:
Yucca Valley
Interior
Appliances
DW, ES, EO
Bathrooms
3 Full Bathrooms
Cooling
DUC
Flooring
VINY
Heating
FA
Laundry Features
IR
Exterior
Community Features
HIKI
Parking Spots
20
Financial
Map
Community
- AddressBorder Avenue Lot 9400 Joshua Tree CA
- CityJoshua Tree
- CountySan Bernardino
- Zip Code92252
Subdivisions in Joshua Tree
Market Summary
Current real estate data for Single Family in Joshua Tree as of Oct 29, 2025
103
Single Family Listed
63
Avg DOM
476
Avg $ / SqFt
$756,587
Avg List Price
Property Summary
- Border Avenue Lot 9400 Joshua Tree CA is a Single Family for sale in Joshua Tree, CA, 92252. It is listed for $625,000 and features 3 beds, 3 baths, and has approximately 1,100 square feet of living space, and was originally constructed in 1960. The current price per square foot is $568. The average price per square foot for Single Family listings in Joshua Tree is $476. The average listing price for Single Family in Joshua Tree is $756,587.
Similar Listings Nearby
Border Avenue Lot 9400
Joshua Tree, CA
































































