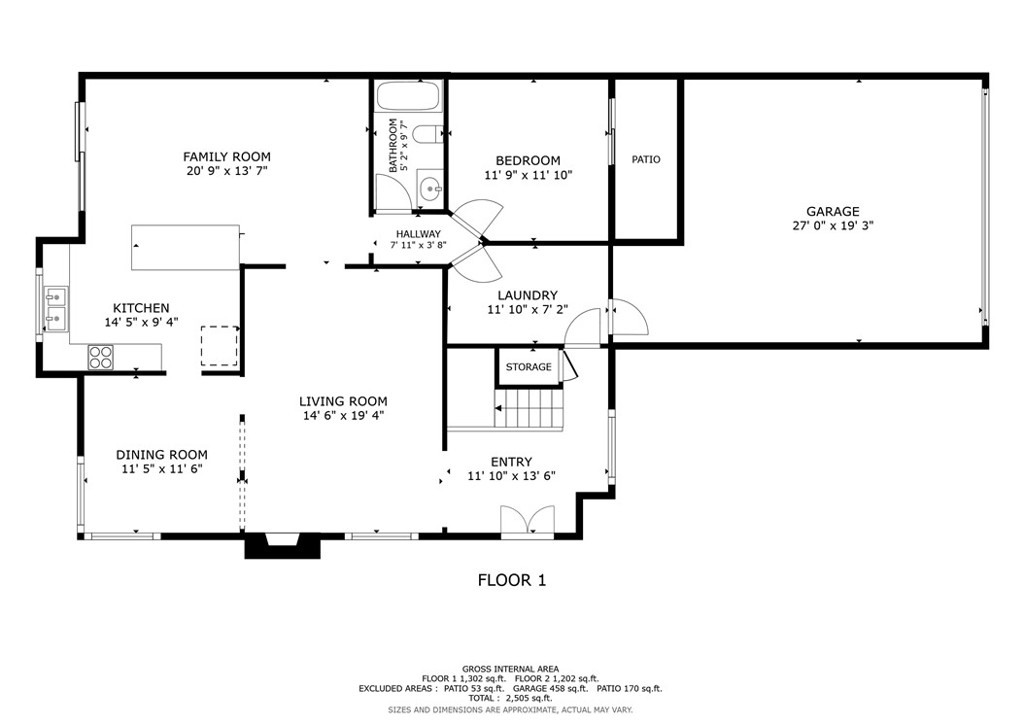
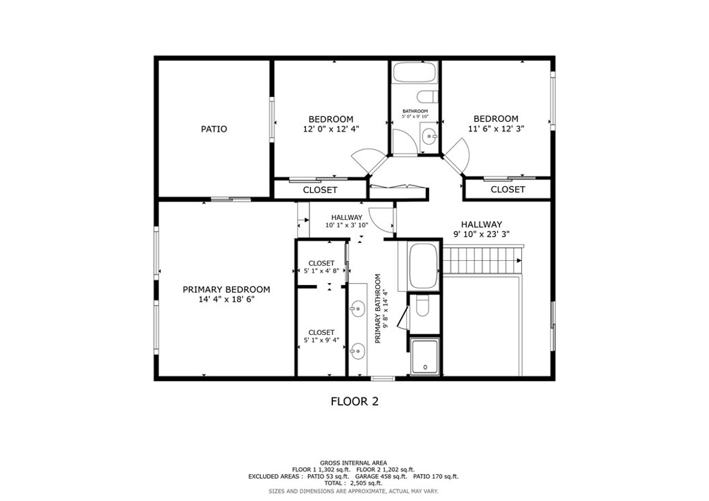
Introducing 7 Done Deal – a true embodiment of luxury and sophistication, in the heart of Irvine’s exclusive NorthWood community. Nestled within one of only a few meticulously Irvine enclaves, a 24-hour safety fortress ensures privacy and security. Less than a mile to the prestigious National Blue Ribbon Award-winning and internationally recognized AP Northwood Elementary and AP Northwood High School. The home itself, is a masterpiece that perfectly balances elegance with functionality. Impeccably upgraded with newer floors, granite kitchen counters, stainless steel appliances, fresh paint, includes new garden sod and fruit trees!. Romantic master suite with lounge deck and expanded and upgraded master bath. Spread across approximately 2,500 square feet, this extraordinary floor plan encompasses 4 bedrooms and 3 baths. An enchanting open plan with downstairs bedroom, while upstairs, the possibilities are endless with 3 bedrooms and private balcony. Prepare to be greeted by high ceilings and a grand entry that sets the stage for the exceptional experience that awaits. The design ensures an abundance of natural light throughout the day, thanks to its East – West facing orientation, making it a haven of brightness even during the winter months. Beautifully designed window coverings, new flooring, recessed lighting, like new stainless steel appliances and upgraded kitchen cabinets and countertops showcase the dedication to luxury living. The future is here with perfect roof orientation to install Solar for power and EV charging, ensuring you’re prepared for the challenges ahead. And when it’s time to relax and unwind, indulge in the community pool, tennis and lounge area, an oasis where you can recharge like a true special agent. Prepare to embark on a mission like no other, where luxury, exclusivity, and the allure of Irvine’s finest community converge.
Property Details
Price:
$1,998,000
MLS #:
OC25275984
Status:
Active
Beds:
4
Baths:
3
Type:
Single Family
Subtype:
Single Family Residence
Subdivision:
La Cuesta LC
Neighborhood:
nwnorthwood
Listed Date:
Dec 15, 2025
Finished Sq Ft:
2,500
Lot Size:
4,545 sqft / 0.10 acres (approx)
Year Built:
1979
See this Listing
Schools
School District:
Irvine Unified
Elementary School:
Northwood
Middle School:
Sierra Vista
High School:
Northwood
Interior
Appliances
DW, GD, DO
Bathrooms
3 Full Bathrooms
Cooling
CA
Laundry Features
IR
Exterior
Community Features
SDW, STM, SL, SUB, FHL, HIKI, BIKI
Parking Spots
2
Roof
TLE
Security Features
SD, COD
Financial
HOA Fee
$200
HOA Frequency
MO
Map
Community
- Address7 Chattanooga Irvine CA
- SubdivisionLa Cuesta (LC)
- CityIrvine
- CountyOrange
- Zip Code92620
Subdivisions in Irvine
- 3000 The Plaza 3PLZ
- Amberwood N.W. AW
- Ambridge AMBR
- Arbors ARBR
- Ashford Place ASHP
- Ashton Green ASHG
- Auburn AUBR
- Avalon EVAVL
- Aventura AVEN
- Avenue One AVE1
- Avila EVAVI
- Barcelona BR
- BEECHWOOD PPBEW
- Belvedere CPWBL
- BIRCH TRAIL PPBIR
- Bowen Court BOWC
- Briarglen BG
- Brio BRIO
- Broadmoor BM
- Calistoga EVCAL
- Cambridge CAMB
- Cambridge Court CC
- Campanile CAMP
- Canyon’s Edge CYNE
- Capella OHCAP
- Casalon CASA
- CASERTA CVCAS
- Chantilly CHAN
- Chantory CHNT
- Chelsea CPWCL
- College Park CP
- Colony 1 C1
- Colony CC
- Columbia Square CS
- Concordia CW
- Coronado CNADO
- Corte Bella CB
- Courtside CS
- Creekside CK
- Crest – Akins CA
- Crest – Standard Pacific CS
- Crossing CS
- Culverdale CD
- Decada DECA
- Deerfield Park DC
- Deerfield Townhomes DB
- Delano EVDEL
- El Camino Glen CH
- Entrata OHENT
- Fairfield FF
- Fiore FIOR
- Garland Park WDGP
- Greystone Villas GRVL
- Grove GR
- Groves Trailer Park TG
- Highlands Townhomes HA
- Horizon HR
- Huntington Collection HUNT
- Irvine Groves IG
- Irvine Springs IS
- Ivy Wreath IVWR
- JADE COURT CVJAD
- JASMINE CVJAS
- Jasmine JASM
- Juliet’s Balcony WDJB
- Kelsey Lane KELL
- la Casella LACA
- La Vita OHLAV
- Lake Condos CM
- Lakeside LK
- Landing I LD
- Landing II L2
- Las Colinas LASC
- Laurel Quail Hill LAUR
- Laurels LR
- Legacy LEGY
- Lennox CPWLX
- Lombard Court WDLC
- Madison CPWMD
- MAGNOLIA CVMAG
- Manchester MANC
- Mandeville MAND
- Manhatten CPWMN
- Marin EVMAR
- Marquee at Park Place MARQ
- Master’s Collection SHMC
- Meadows Trailer Park TM
- MELROSE PPMEL
- Mendocino North MND2
- Messina OHMES
- Metropolitan MET
- Mille Fleurs WDMF
- Montecito MNCTO
- Monterey MREY
- Monticello MONT
- Montilla MONT
- Northwood Meadows MD
- Northwood Park PK
- Northwood Place PL
- Northwood Villas NV
- Oak Park OAKP
- Oxford Court OC
- Paloma PALO
- Park Crest PT
- Park I In Village Park P1
- Park Paseo PS
- Park Place PP
- Park Vista PV
- Parkside PS
- Parkview PW
- Patio Homes WB PT
- Petaluma EVPET
- Piedmont EVPID
- Pointe – Turtle Rock PO
- Portisol WDPT
- Primrose PRIM
- Princeton Townhomes CP
- Promenade PR
- Ranch RC
- Revere REVE
- Ridge Garden Homes RH
- Ridge Townhomes Akins RA
- Ridge Townhomes Bren RB
- Ridge Townhomes Peters RP
- RSJ Townhomes JH
- RSJ Villas JV
- Rutherford RUTH
- SAGEWOOD PPSAG
- San Carlos SANC
- Santa Cruz SCRUZ
- Savannah SAVA
- Seasons SN
- Serissa SERI
- Serra SERA
- Shady Canyon Custom SHDC
- Sheridan Place SHPL
- Show Case SC
- Silverado SILV
- Smoketree ST
- Somerset ST
- Sonoma SONM
- South Lake Villas SLC
- Stonegate SG
- Summerfield SF
- Summit Towne Collection TST
- Terra Bella TERB
- Terrace President TR
- Terrace TR
- Terrazza OHTER
- The Lakes LK
- The Plaza 5000 and 8000 PLZA
- Tiempo TI
- Townhomes TH
- Tremaine TREM
- Treo WDTR
- Trevi OHTRE
- Trieste TRIE
- Varenna OHVAR
- Vientos VIEN
- Village I V1
- Village II V2
- Village III Village Park V3
- Villas of Shady Canyon SHVL
- Villas VL
- Vintage VIN
- Vista Filare VF
- Vista Scena OHVIS
- Vista Turtle Rock VT
- Walnut Court WC
- Walnut Square WS
- Watermarke WATR
- Willows WL
- Windsor Estates WE
- Windwood Townhomes TH
- Wisteria WIST
- Woodbridge Reserve WBRS
- Woodcrest WT
Market Summary
Current real estate data for Single Family in Irvine as of Dec 17, 2025
383
Single Family Listed
41
Avg DOM
325
Avg $ / SqFt
$959,602
Avg List Price
Property Summary
- Located in the La Cuesta (LC) subdivision, 7 Chattanooga Irvine CA is a Single Family for sale in Irvine, CA, 92620. It is listed for $1,998,000 and features 4 beds, 3 baths, and has approximately 2,500 square feet of living space, and was originally constructed in 1979. The current price per square foot is $799. The average price per square foot for Single Family listings in Irvine is $325. The average listing price for Single Family in Irvine is $959,602.
Similar Listings Nearby
7 Chattanooga
Irvine, CA



























