There are multiple listings for this address:
• Welcome to this exceptionally rare, cozy, income-producing single-story property in the heart of Huntington Beach. Nestled in a quiet neighborhood, this well-maintained residence offers stable cash flow, strong upside potential, and a prime Southern California location, just minutes away from Huntington Beach, shopping, dining, and entertainment (approximately 20 minutes from Disneyland and Knott’s Berry Farm), with convenient freeway access.
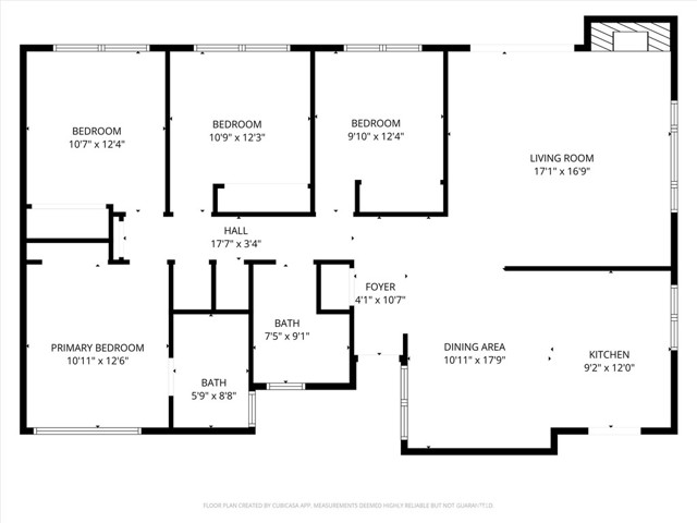
• Step inside to a functional layout that includes a generously sized living area, dining space, and well-appointed bedrooms. Existing finishes reflect original character, affording a thoughtful investor the chance to reposition through selective remodeling — kitchen upgrades, refreshed baths, enhanced flooring, and modern touches could drive strong returns.
• Homes surrounding the Rushmoor area are consistently well-valued, providing confidence in asset stability and resale potential. Deep appeal to both renter and buyer markets, excellent long-term holding in a desirable coastal market.
• Step inside to a functional layout that includes a generously sized living area, dining space, and well-appointed bedrooms. Existing finishes reflect original character, affording a thoughtful investor the chance to reposition through selective remodeling — kitchen upgrades, refreshed baths, enhanced flooring, and modern touches could drive strong returns.
• Homes surrounding the Rushmoor area are consistently well-valued, providing confidence in asset stability and resale potential. Deep appeal to both renter and buyer markets, excellent long-term holding in a desirable coastal market.
Property Details
Price:
$1,180,000
MLS #:
TR25239225
Status:
Active
Beds:
0
Baths:
0
Type:
Single Family
Subtype:
Single Family Residence
Neighborhood:
699
Listed Date:
Oct 16, 2025
Lot Size:
6,000 sqft / 0.14 acres (approx)
Year Built:
1962
See this Listing
Schools
School District:
Huntington Beach Union High
Interior
Appliances
DW, GD, MW, RF, GO, GR, GS, GWH, WHU
Bathrooms
2 Full Bathrooms
Cooling
CA
Flooring
TILE, LAM
Heating
CF, FIR
Laundry Features
ELC, IG, WH
Exterior
Architectural Style
CNT
Community Features
SDW
Parking Spots
2
Financial
Map
Community
- AddressRushmoor LN Lot 45 Huntington Beach CA
- CityHuntington Beach
- CountyOrange
- Zip Code92647
Subdivisions in Huntington Beach
- Ashbury ASHB
- Avalon AVAL
- Ballerina BALL
- Bay Club HHBC
- Bayshore BAYS
- Beach Homes BCHM
- Beach Homes North BCHN
- Beachwalk BCWK
- Bel Air BELA
- Bluffs BLUF
- Bolsa Landmark BLAN
- Brisas Del Mar BRDM
- Cabo Del Mar CABO
- California Classics 15 CALI
- Capewoods CAPW
- Cedarglen Warner CGHB
- Central Park Estates 3 CPE3
- Century Shores CSHO
- Christiana Bay CHRB
- Classic Crest 17 CLAC
- Crystalaire CRYS
- Deane Gardens DEAN
- Downtown Area DOWN
- Dutch Haven America 17 DHAM
- Dutch Haven College DHCO
- Dutch Haven Marina DHMA
- Faire Marin HHFM
- Fashion Shores I FSNS
- Fernhill FERN
- Franciscan Fountains FRAN
- Gilbert Island HGIL
- Glen Mar Shores GLEN
- Glen Mar West GMWE
- Goldenwest Estates old GWEO
- Goldenwest Park GWPK
- Greystone Keys GREK
- Hamptons 2 Ascot Series HAM2
- Harbor Heights Villas HHVA
- Harboring Villas HRVL
- Harbour Village HRVI
- Harbour Vista HARV
- Humboldt Island HHUM
- Huntington Bay HBAY
- Huntington Classics HTCL
- Huntington Continental HCON
- Huntington Court HUNC
- Huntington Crest Newer HCRN
- Huntington Crest old HCRO
- Huntington Landmark Townhomes HLAN
- Huntington North HNOR
- Huntington Pacific HPAC
- Huntington Seacliff HSEA
- Huntington Townhomes HTHM
- Huntington Township HHTS
- Huntington View HTVW
- Huntington Village I HVL1
- Huntington Village II HVL2
- Huntington West HWST
- La Cuesta By Sea LBSC
- La Cuesta LACU
- Lake Park Estates LPES
- Landing LNDG
- Landmark LAND
- Las Fuentes LFVE
- Lyon Shores LYSH
- Mainland HHML
- Meredith Gardens MERE
- Mill Stream MSRM
- Mystic Pointe MYSP
- Newport West NEWP
- Ocean Pointe OCPT
- Pacific Park Villas PPKV
- Pacific Ranch Townhomes PRAT
- Pacific Ranch Villas PRAV
- Pacific Sands Dean/Broc PSAN
- Pacific Shores Bungalows PSBUN
- Pacific Shores Villas PSVIL
- Park Huntington PKHU
- Park Place PKPL
- Parkside Classics PRKC
- Pier Colony PRCL
- Pierhouse Condos PRHS
- Pierpointe PRPT
- Plaza Almeria PLZA
- Portofino Cove Condos HHPC
- Premier 15 PREM
- Prestige 15 Tr 5792 PRES
- Prestige 17 Tr 6181 PRES6
- Riviera Huntington RIHU
- Robinwood ROBI
- Sea Cove at The Waterfront SCVW
- Sea Harbour SEHR
- Seabridge HHSB
- Seabridge Lakes SBLK
- Seabridge Townhomes SBTH
- Seabridge Villas SBVL
- Seabury SEAB
- Seacliff Club Series HSCS
- Seacliff Estates I HSG1
- Seacliff Estates II HSG2
- Seagate SEAG
- Seahaven SEAH
- Seaside Village SSVG
- Seaspray SSPR
- Showcase SHOW
- Sol Vista Beach/Heil SVBH
- South Shores SSHO
- Southport SPOR
- Springdale Shores SPSH
- Springdale South SPSO
- Springdale West SPWE
- Springhurst SHUR
- Stardust Bolsa/Edinger STR
- Sunset Beach SUNB
- Sunshine SUHB
- Tamarack TAMA
- Tennis Estates TENN
- Theme Homes THEM
- Tides TIDE
- Trinidad Island HTRI
- Villa Warner VWAR
- Village Court VGCT
- Village Townhomes VGTH
- Weatherly Bay WEAB
- Whitehall by The Sea WHIT
- Windward Cove WWCV
- Yorktown Villas YRKV
- Yorktowne YORK
Market Summary
Current real estate data for Single Family in Huntington Beach as of Nov 01, 2025
273
Single Family Listed
37
Avg DOM
485
Avg $ / SqFt
$1,176,340
Avg List Price
Property Summary
- Rushmoor LN Lot 45 Huntington Beach CA is a Single Family for sale in Huntington Beach, CA, 92647. It is listed for $1,180,000 and features 0 beds, 0 baths, and has approximately 0 square feet of living space, and was originally constructed in 1962. The average price per square foot for Single Family listings in Huntington Beach is $485. The average listing price for Single Family in Huntington Beach is $1,176,340.
Similar Listings Nearby
Rushmoor LN Lot 45
Huntington Beach, CA
• Welcome to this exceptionally rare, cozy, income-producing single-story property in the heart of Huntington Beach. Nestled in a quiet neighborhood, this well-maintained residence offers stable cash flow, strong upside potential, and a prime Southern California location, just minutes away from Huntington Beach, shopping, dining, and entertainment (approximately 20 minutes from Disneyland and Knott’s Berry Farm), with convenient freeway access.
• Step inside to a functional layout that includes a generously sized living area, dining space, and well-appointed bedrooms. Existing finishes reflect original character, affording a thoughtful investor the chance to reposition through selective remodeling — kitchen upgrades, refreshed baths, enhanced flooring, and modern touches could drive strong returns.
• Homes surrounding the Rushmoor area are consistently well-valued, providing confidence in asset stability and resale potential. Deep appeal to both renter and buyer markets, excellent long-term holding in a desirable coastal market.
• Step inside to a functional layout that includes a generously sized living area, dining space, and well-appointed bedrooms. Existing finishes reflect original character, affording a thoughtful investor the chance to reposition through selective remodeling — kitchen upgrades, refreshed baths, enhanced flooring, and modern touches could drive strong returns.
• Homes surrounding the Rushmoor area are consistently well-valued, providing confidence in asset stability and resale potential. Deep appeal to both renter and buyer markets, excellent long-term holding in a desirable coastal market.
Property Details
Price:
$1,180,000
MLS #:
TR25239275
Status:
Active
Beds:
4
Baths:
2
Type:
Single Family
Subtype:
Single Family Residence
Neighborhood:
699
Listed Date:
Oct 16, 2025
Finished Sq Ft:
1,432
Lot Size:
6,000 sqft / 0.14 acres (approx)
Year Built:
1962
See this Listing
Schools
School District:
Huntington Beach Union High
Interior
Appliances
DW, GD, MW, RF, GO, GR, GS, GWH, WHU
Bathrooms
2 Full Bathrooms
Cooling
CA
Flooring
TILE, LAM
Heating
CF, FIR
Laundry Features
ELC, IG, WH
Exterior
Architectural Style
CNT
Community Features
SDW
Parking Spots
2
Financial
Map
Community
- AddressRushmoor LN Lot 45 Huntington Beach CA
- CityHuntington Beach
- CountyOrange
- Zip Code92647
Subdivisions in Huntington Beach
- Ashbury ASHB
- Avalon AVAL
- Ballerina BALL
- Bay Club HHBC
- Bayshore BAYS
- Beach Homes BCHM
- Beach Homes North BCHN
- Beachwalk BCWK
- Bel Air BELA
- Bluffs BLUF
- Bolsa Landmark BLAN
- Brisas Del Mar BRDM
- Cabo Del Mar CABO
- California Classics 15 CALI
- Capewoods CAPW
- Cedarglen Warner CGHB
- Central Park Estates 3 CPE3
- Century Shores CSHO
- Christiana Bay CHRB
- Classic Crest 17 CLAC
- Crystalaire CRYS
- Deane Gardens DEAN
- Downtown Area DOWN
- Dutch Haven America 17 DHAM
- Dutch Haven College DHCO
- Dutch Haven Marina DHMA
- Faire Marin HHFM
- Fashion Shores I FSNS
- Fernhill FERN
- Franciscan Fountains FRAN
- Gilbert Island HGIL
- Glen Mar Shores GLEN
- Glen Mar West GMWE
- Goldenwest Estates old GWEO
- Goldenwest Park GWPK
- Greystone Keys GREK
- Hamptons 2 Ascot Series HAM2
- Harbor Heights Villas HHVA
- Harboring Villas HRVL
- Harbour Village HRVI
- Harbour Vista HARV
- Humboldt Island HHUM
- Huntington Bay HBAY
- Huntington Classics HTCL
- Huntington Continental HCON
- Huntington Court HUNC
- Huntington Crest Newer HCRN
- Huntington Crest old HCRO
- Huntington Landmark Townhomes HLAN
- Huntington North HNOR
- Huntington Pacific HPAC
- Huntington Seacliff HSEA
- Huntington Townhomes HTHM
- Huntington Township HHTS
- Huntington View HTVW
- Huntington Village I HVL1
- Huntington Village II HVL2
- Huntington West HWST
- La Cuesta By Sea LBSC
- La Cuesta LACU
- Lake Park Estates LPES
- Landing LNDG
- Landmark LAND
- Las Fuentes LFVE
- Lyon Shores LYSH
- Mainland HHML
- Meredith Gardens MERE
- Mill Stream MSRM
- Mystic Pointe MYSP
- Newport West NEWP
- Ocean Pointe OCPT
- Pacific Park Villas PPKV
- Pacific Ranch Townhomes PRAT
- Pacific Ranch Villas PRAV
- Pacific Sands Dean/Broc PSAN
- Pacific Shores Bungalows PSBUN
- Pacific Shores Villas PSVIL
- Park Huntington PKHU
- Park Place PKPL
- Parkside Classics PRKC
- Pier Colony PRCL
- Pierhouse Condos PRHS
- Pierpointe PRPT
- Plaza Almeria PLZA
- Portofino Cove Condos HHPC
- Premier 15 PREM
- Prestige 15 Tr 5792 PRES
- Prestige 17 Tr 6181 PRES6
- Riviera Huntington RIHU
- Robinwood ROBI
- Sea Cove at The Waterfront SCVW
- Sea Harbour SEHR
- Seabridge HHSB
- Seabridge Lakes SBLK
- Seabridge Townhomes SBTH
- Seabridge Villas SBVL
- Seabury SEAB
- Seacliff Club Series HSCS
- Seacliff Estates I HSG1
- Seacliff Estates II HSG2
- Seagate SEAG
- Seahaven SEAH
- Seaside Village SSVG
- Seaspray SSPR
- Showcase SHOW
- Sol Vista Beach/Heil SVBH
- South Shores SSHO
- Southport SPOR
- Springdale Shores SPSH
- Springdale South SPSO
- Springdale West SPWE
- Springhurst SHUR
- Stardust Bolsa/Edinger STR
- Sunset Beach SUNB
- Sunshine SUHB
- Tamarack TAMA
- Tennis Estates TENN
- Theme Homes THEM
- Tides TIDE
- Trinidad Island HTRI
- Villa Warner VWAR
- Village Court VGCT
- Village Townhomes VGTH
- Weatherly Bay WEAB
- Whitehall by The Sea WHIT
- Windward Cove WWCV
- Yorktown Villas YRKV
- Yorktowne YORK
Market Summary
Current real estate data for Single Family in Huntington Beach as of Nov 01, 2025
273
Single Family Listed
37
Avg DOM
485
Avg $ / SqFt
$1,176,340
Avg List Price
Property Summary
- Rushmoor LN Lot 45 Huntington Beach CA is a Single Family for sale in Huntington Beach, CA, 92647. It is listed for $1,180,000 and features 4 beds, 2 baths, and has approximately 1,432 square feet of living space, and was originally constructed in 1962. The current price per square foot is $824. The average price per square foot for Single Family listings in Huntington Beach is $485. The average listing price for Single Family in Huntington Beach is $1,176,340.































