Exceptional investment opportunity in the heart of Granada Hills! This newly remodeled single-family residence is accompanied by two ADUs, offering incredible income potential and flexibility for owner-users or investors alike.
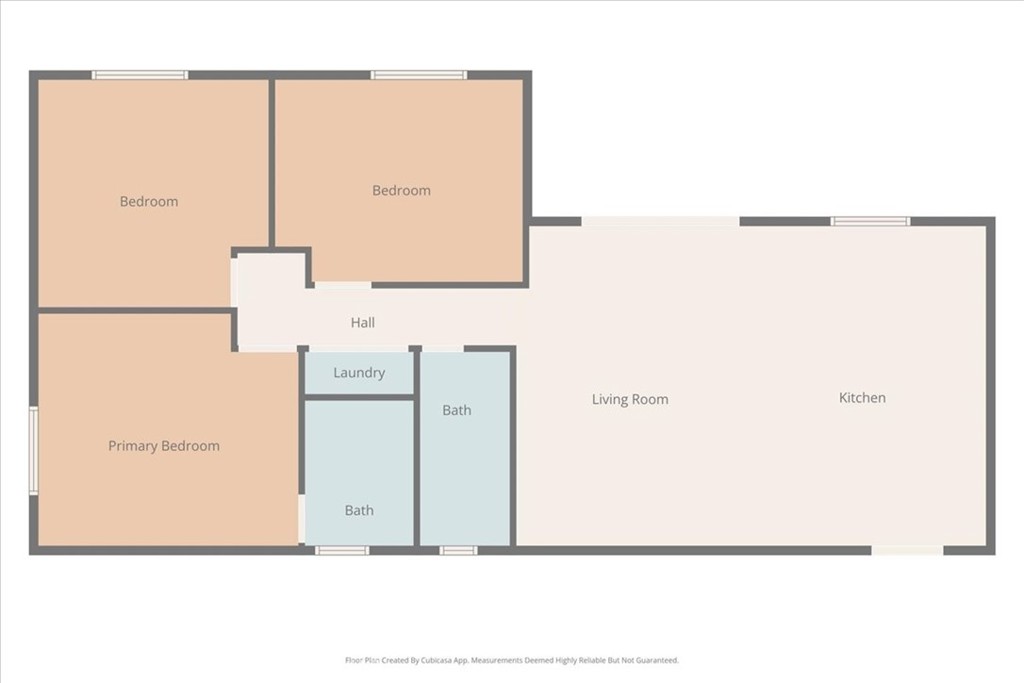
The main residence, 15952 Simonds St, features approximately 1,200 sq ft with 3 bedrooms and 1.5 bathrooms, thoughtfully updated and currently tenant-occupied on a month-to-month basis.
The attached Jr. ADU (15950 Simonds St) offers approximately 550 sq ft, featuring 1 bedroom and 1 bathroom, newly built and vacant at time of listing, ideal for rental income or extended family.
The detached ADU (15954 Simonds St) is a standout, offering approximately 1,200 sq ft with 3 bedrooms and 2 bathrooms, newly constructed and vacant with high ceilings, providing modern finishes, privacy, and excellent rental appeal.
With all units newly remodeled or newly built, this property delivers strong cash-flow potential, multiple income streams, and long-term value in a desirable Granada Hills location close to schools, shopping, dining, and freeway access. A rare opportunity to own a turn-key multi-unit property on one lot—perfect for investors, 1031 buyers, or owner-occupants looking to offset their mortgage with rental income.
The main residence, 15952 Simonds St, features approximately 1,200 sq ft with 3 bedrooms and 1.5 bathrooms, thoughtfully updated and currently tenant-occupied on a month-to-month basis.
The attached Jr. ADU (15950 Simonds St) offers approximately 550 sq ft, featuring 1 bedroom and 1 bathroom, newly built and vacant at time of listing, ideal for rental income or extended family.
The detached ADU (15954 Simonds St) is a standout, offering approximately 1,200 sq ft with 3 bedrooms and 2 bathrooms, newly constructed and vacant with high ceilings, providing modern finishes, privacy, and excellent rental appeal.
With all units newly remodeled or newly built, this property delivers strong cash-flow potential, multiple income streams, and long-term value in a desirable Granada Hills location close to schools, shopping, dining, and freeway access. A rare opportunity to own a turn-key multi-unit property on one lot—perfect for investors, 1031 buyers, or owner-occupants looking to offset their mortgage with rental income.
Property Details
Price:
$1,699,000
MLS #:
GD25279547
Status:
Active
Beds:
4
Baths:
2
Type:
Single Family
Subtype:
Single Family Residence
Neighborhood:
ghgranadahills
Listed Date:
Dec 24, 2025
Finished Sq Ft:
2,950
Lot Size:
8,387 sqft / 0.19 acres (approx)
Year Built:
1955
See this Listing
Schools
School District:
Los Angeles Unified
Interior
Bathrooms
2 Full Bathrooms
Cooling
CA
Heating
CF
Laundry Features
IN
Exterior
Community Features
SUB
Parking Spots
2
Financial
Map
Community
- Address15952 Simonds Granada Hills CA
- CityGranada Hills
- CountyLos Angeles
- Zip Code91344
Subdivisions in Granada Hills
Market Summary
Current real estate data for Single Family in Granada Hills as of Dec 25, 2025
52
Single Family Listed
32
Avg DOM
297
Avg $ / SqFt
$846,480
Avg List Price
Property Summary
- 15952 Simonds Granada Hills CA is a Single Family for sale in Granada Hills, CA, 91344. It is listed for $1,699,000 and features 4 beds, 2 baths, and has approximately 2,950 square feet of living space, and was originally constructed in 1955. The current price per square foot is $576. The average price per square foot for Single Family listings in Granada Hills is $297. The average listing price for Single Family in Granada Hills is $846,480.
Similar Listings Nearby
15952 Simonds
Granada Hills, CA


































