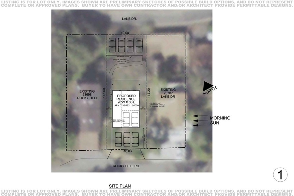
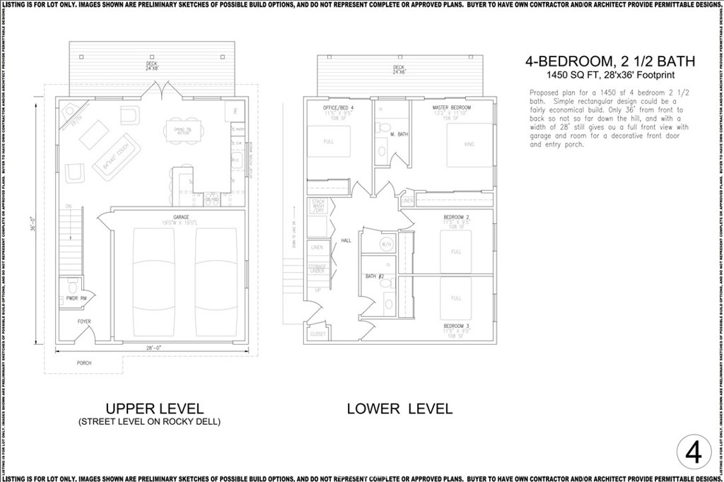
Buildable lot with some slope and minimal trees. Street access from both top and bottom (Rocky Dell and Lake Dr). All utilities in the area, houses on both sides. Manageable walk to stores along Lake Dr and Lake Gregory. Decent view overlooking turn of Lake Dr as it enters the commercial district with hills and trees beyond. Lake Dr is major street, so first to be plowed after heavy snow – with straightforward route back down to San Bernardino. Some sample floor plans shown – these are preliminary sketches and would need additional designs by your architect/contractor for submittal to building dept. Quality pdfs to share with your contractor for rough estimates and/or minor changes to layout per your preferences are available.
Property Details
Price:
$79,000
MLS #:
TR23229660
Status:
Active
Beds:
0
Baths:
0
Type:
Land
Subdivision:
Crestline CRES
Neighborhood:
286crestlinearea
Listed Date:
Dec 26, 2023
Lot Size:
4,640 sqft / 0.11 acres (approx)
See this Listing
Schools
Interior
Exterior
Community Features
MTN, LAKE, HIKI
Financial
Map
Community
- AddressLake DR Lot 1222 Crestline CA
- SubdivisionCrestline (CRES)
- CityCrestline
- CountySan Bernardino
- Zip Code92325
Subdivisions in Crestline
Market Summary
Property Summary
- Located in the Crestline (CRES) subdivision, Lake DR Lot 1222 Crestline CA is a Land for sale in Crestline, CA, 92325. It is listed for $79,000 and features 0 acres.
Similar Listings Nearby
Lake DR Lot 1222
Crestline, CA












