NEW CONSTRUCTION 2 bed, 2.5 bath contemporary townhome in the gated community of “Ascent at Colton”. Gourmet kitchen with energy-efficient stainless steel gas range + dishwasher, white shaker-style cabinets, and granite countertops. Large primary suite with walk-in closet and ensuite bathroom with oversized glass shower. Enjoy on-site amenities including a beautiful swimming pool, complete with areas to lounge, dine, and socialize. Ascent at Colton is conveniently located near the 10 and 215 Freeways, providing quick access to neighboring cities, the mountains, and the desert.  READY FOR IMMEDIATE OCCUPANCY. Photos are of the models, not the actual unit being sold. BUILDER SPECIAL – $7,500 towards closing costs for contract signed by 10/31/25
Property Details
Price:
$441,990
MLS #:
PW25159974
Status:
Active
Beds:
2
Baths:
3
Type:
Townhouse
Neighborhood:
273
Listed Date:
Oct 7, 2025
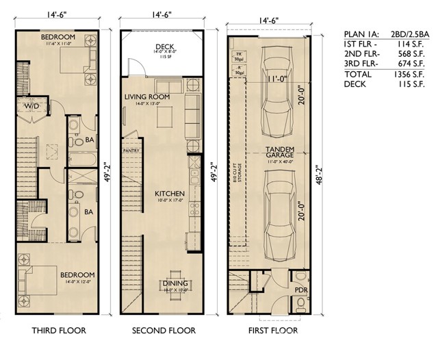
Finished Sq Ft:
1,356
Year Built:
2025
See this Listing
Schools
School District:
Colton Unified
Interior
Appliances
GD,   MW,   RF,   GR,   GS,   FSR,   TW
Bathrooms
1 Full Bathroom, 1 Three Quarter Bathroom, 1 Half Bathroom
Cooling
CA
Flooring
LAM,   CARP
Laundry Features
ICL,   UL
Exterior
Community Features
SDW,   STM,   SL,   SUB,   CRB,   CW
Parking Spots
2
Security Features
SD,   AG,   COD,   FS,   GC
Financial
HOA Fee
$310
HOA Frequency
MO
Map
Community
- AddressSanto Antonio DR Lot 39 Colton CA
 - CityColton
 - CountySan Bernardino
 - Zip Code92324
 
Market Summary
Property Summary
- Santo Antonio DR Lot 39 Colton CA is a Townhouse for sale in Colton, CA, 92324.  It is listed for $441,990 and features 2 beds, 3 baths, and has approximately 1,356 square feet of living space, and was originally constructed in 2025. The current price per square foot is $326.  The average price per square foot for Townhouse listings in Colton is $325.  The average listing price for Townhouse in Colton is $439,792.
 
Similar Listings Nearby
Santo Antonio DR Lot 39
Colton, CA

















































