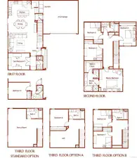
LOCATION LOCATION LOCATION. This condominium is located in the Mosaic Community. Ready for quick occupancy. You’ll find an open floor plan that is light and bright. Laminate wood flooring throughout. Granite countertops in kitchen with island. Bedroom and bath on entry level with outdoor patio. Other bedrooms are on the third floor. Open floor plan on second floor with outdoor balcony. Fireplace and custom wiring for speakers in living room. Newly custom painted with modern ceiling fans throughout.
Property Details
Price:
$699,999
MLS #:
250041660SD
Status:
Active
Beds:
3
Baths:
4
Type:
Single Family
Neighborhood:
91913
Listed Date:
Oct 14, 2025
Finished Sq Ft:
1,663
Year Built:
2013
See this Listing
Schools
Interior
Appliances
GO, GS
Bathrooms
3 Full Bathrooms, 1 Half Bathroom
Cooling
CA
Heating
ELC, FA, FIR, HE
Laundry Features
GAS, IN
Exterior
Construction Materials
STC
Parking Spots
2
Financial
HOA Fee
$388
HOA Frequency
MO
Map
Community
- AddressAquamarine Ct #7 Chula Vista CA
- CityChula Vista
- CountySan Diego
- Zip Code91913
Subdivisions in Chula Vista
Market Summary
Current real estate data for Single Family in Chula Vista as of Nov 04, 2025
247
Single Family Listed
46
Avg DOM
369
Avg $ / SqFt
$774,899
Avg List Price
Property Summary
- Aquamarine Ct #7 Chula Vista CA is a Single Family for sale in Chula Vista, CA, 91913. It is listed for $699,999 and features 3 beds, 4 baths, and has approximately 1,663 square feet of living space, and was originally constructed in 2013. The current price per square foot is $421. The average price per square foot for Single Family listings in Chula Vista is $369. The average listing price for Single Family in Chula Vista is $774,899.
Similar Listings Nearby
Aquamarine Ct #7
Chula Vista, CA


