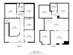
Available November 11 | Executive Home in Rancho Del Rey Estates Welcome to your future home in the prestigious Rancho Del Rey Estates, where timeless elegance meets modern luxury. This impressive executive property offers 3700 square feet of sophisticated living space with 5 bedrooms, an office/bonus room, and 3 full bathrooms, providing ample room for both grand entertaining and relaxed family living. Key Features: Grand Entryway Open Concept Design Multiple Fireplaces: Three distinct fireplaces create ambiance and warmth throughout the home. Custom Shutters & Fans: Large windows in every room are fitted with rich wood plantation shutters, enhancing privacy while letting natural light flood the home. Stylish ceiling fans complement each room, providing comfort and adding a design touch. Primary Suite: The primary suite upstairs feels like a private retreat, located in its own wing just off the upstairs foyer. A true sanctuary, it features: • Sun-filled Space: Enjoy the airy, light-filled space with multiple windows overlooking the beautifully landscaped backyard, offering serene sunset views. • Walk-in Closet: The expansive, custom-designed walk-in closet comes complete with built-ins, a seating area, and an abundance of shelving, perfect for keeping your wardrobe organized and accessible. • Luxurious Ensuite: Relax in the spa-like bathroom with a sunken tub framed by large windows and a separate glassed-in shower. The ensuite also includes a private toilet room, double sinks with oak cabinetry, and a vanity nook—ideal for starting your day in style. Gourmet Kitchen: A chef’s dream, the kitchen blends functionality with high-end design, featuring: • Stainless Steel Appliances: Top-of-the-line appliances, including a 5-burner gas range, sleek vent hood, and double ovens. • Ample Storage: Abundant oak cabinetry surrounds the kitchen and a walk-in pantry—offering more than enough space to store all your culinary tools and ingredients. • Marble Island: A large marble island with counter seating is the heart of this kitchen, perfect for meal prep and casual dining. • The kitchen flows into a bright informal living space, with a solarium that offers direct access to the backyard—ideal for seamless indoor/outdoor entertaining. Additional Living Spaces: • Family Room: Spacious yet cozy, with natural light pouring in from the large windows, making it the perfect space for family movie nights or relaxed evenings. • Formal Living and Dining Areas: Immaculate spaces for hosting formal dinners or holiday gatherings, with the grandeur of double-height ceilings and sparkling chandeliers overhead. • Bonus Room/Office: A versatile room with plenty of space to create your perfect work-from-home setup, gym, or creative studio. Outdoors: The landscaped front and backyards have well-manicured lawns, rose bushes and sweeping morning glories. The backyard is perfect for entertaining or simply enjoying the Southern California sunshine. Special Touches: • Dramatic Staircase: A grand, sweeping staircase with elegant oak railing leads upstairs, with a view of the crystal chandelier from the landing, providing a focal point of luxury in the home. • 2-Car Garage: Spacious, secure parking for two vehicles, with additional storage options. • Secured Entry: The home features an iron-gated entry vestibule, ensuring both privacy and style, along with gates to both the front and back yards for added security. • Hardscaping & Landscape Lighting: Outdoor living is enhanced by hardscape lighting and pathway lights in both the front and back of the home
Property Details
Price:
$5,495
MLS #:
PTP2405844
Status:
Pending
Beds:
6
Baths:
3
Type:
Single Family
Subtype:
Single Family Residence
Neighborhood:
91910chulavista
Listed Date:
Feb 3, 2025
Finished Sq Ft:
3,700
Lot Size:
3,700 sqft / 0.08 acres (approx)
Year Built:
2000
See this Listing
Schools
School District:
Sweetwater Union
Interior
Bathrooms
3 Full Bathrooms
Cooling
CA
Laundry Features
DINC, WINC
Exterior
Community Features
BIKI, DGP
Parking Spots
2
Financial
Map
Community
- Address1018 Burga Loop Chula Vista CA
- CityChula Vista
- CountySan Diego
- Zip Code91910
Subdivisions in Chula Vista
Market Summary
Current real estate data for Single Family in Chula Vista as of Dec 12, 2025
205
Single Family Listed
69
Avg DOM
355
Avg $ / SqFt
$749,100
Avg List Price
Property Summary
- 1018 Burga Loop Chula Vista CA is a Single Family for sale in Chula Vista, CA, 91910. It is listed for $5,495 and features 6 beds, 3 baths, and has approximately 3,700 square feet of living space, and was originally constructed in 2000. The current price per square foot is $1. The average price per square foot for Single Family listings in Chula Vista is $355. The average listing price for Single Family in Chula Vista is $749,100.
Similar Listings Nearby
1018 Burga Loop
Chula Vista, CA


















