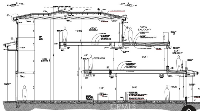
View! Premier Ready-to-Build View Lot in Exclusive Vellano gated community. Fully approved building plans—ready to build an extraordinary custom home. 270-degree city lights views with snow-capped mountains. All plans have been fully approved by both the City of Chino Hills and the HOA—construction can start immediately. Approved landscape plans. Soil, site, fire department, engineering, and architecture plans included. Discover the extraordinary potential of this expansive, prime building parcel located in the prestigious, 24-hour guard-gated Vellano community. This exclusive street is surrounded by multimillion-dollar estates and is positioned near the end of a private cul-de-sac. This rare, flat lot offers unparalleled privacy, security, and panoramic views of the city skyline, and rolling hills. With ample space for a luxury custom home, a large estate compound, equestrian use, or resort-style outdoor amenities, the mostly level terrain provides an ideal canvas for your vision.
This exceptional parcel mirrors the expansive potential of renowned hillside properties, offering open space, serenity, and the freedom to create a dream residence. Its location places you close to top-rated schools, parks, shopping, dining, and major transportation routes, while maintaining the tranquility and exclusivity of a luxury enclave. Utilities are conveniently available at the curb.
Whether you envision a grand private estate, a multigenerational compound, or a custom retreat with breathtaking vistas, this property offers limitless possibilities. Flat, buildable lots with views like this are exceedingly scarce in Chino Hills—especially within a gated luxury community.
Don’t miss the chance to own a piece of nature’s finest real estate and bring your dream estate to life in one of Southern California’s most sought-after neighborhoods.
This exceptional parcel mirrors the expansive potential of renowned hillside properties, offering open space, serenity, and the freedom to create a dream residence. Its location places you close to top-rated schools, parks, shopping, dining, and major transportation routes, while maintaining the tranquility and exclusivity of a luxury enclave. Utilities are conveniently available at the curb.
Whether you envision a grand private estate, a multigenerational compound, or a custom retreat with breathtaking vistas, this property offers limitless possibilities. Flat, buildable lots with views like this are exceedingly scarce in Chino Hills—especially within a gated luxury community.
Don’t miss the chance to own a piece of nature’s finest real estate and bring your dream estate to life in one of Southern California’s most sought-after neighborhoods.
Property Details
Price:
$1,799,000
MLS #:
TR25260331
Status:
Active
Beds:
0
Baths:
0
Type:
Land
Neighborhood:
682
Listed Date:
Nov 18, 2025
Lot Size:
12,188 sqft / 0.28 acres (approx)
See this Listing
Schools
Interior
Exterior
Community Features
SDW, SL, CRB, FHL, PARK
Financial
Map
Community
- AddressCollinas Pt Lot 58 Chino Hills CA
- CityChino Hills
- CountySan Bernardino
- Zip Code91709
Market Summary
Current real estate data for Land in Chino Hills as of Nov 21, 2025
3
Land Listed
17
Avg DOM
$952,633
Avg List Price
Property Summary
- Collinas Pt Lot 58 Chino Hills CA is a Land for sale in Chino Hills, CA, 91709. It is listed for $1,799,000 and features 0 acres.
Similar Listings Nearby
Collinas Pt Lot 58
Chino Hills, CA





























