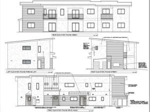
Shovel-ready plans to build six 1-bed/1-bath units, development potential. Collect income while you prepare to build! Close to Downtown and Chico State, this R3-zoned property sits on a generous .31-acre lot bordering Little Chico Creek. The charming red home with its welcoming covered front porch draws you in right away. Inside, you’ll find hardwood floors, newer windows throughout, a kitchen with a gas range, and a fully remodeled bathroom. Step outside to a brand-new, oversized back deck overlooking the expansive fenced yard and large shop, a rare find so close to town.
Property Details
Price:
$420,000
MLS #:
SN25262508
Status:
Active
Beds:
0
Baths:
0
Type:
Land
Listed Date:
Nov 20, 2025
Lot Size:
13,504 sqft / 0.31 acres (approx)
See this Listing
Schools
Interior
Exterior
Community Features
CRB
Financial
Map
Community
- AddressWalnut ST Lot 11 Chico CA
- CityChico
- CountyButte
- Zip Code95928
Market Summary
Property Summary
- Walnut ST Lot 11 Chico CA is a Land for sale in Chico, CA, 95928. It is listed for $420,000 and features 0 acres.
Similar Listings Nearby
Walnut ST Lot 11
Chico, CA








