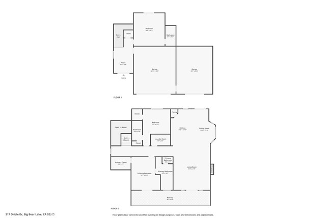
This 2,297 square foot home is in the coveted Eagle Point neighborhood ~ Only a 5 minute walk to the lake and Meadow Park for Pickle Ball, baseball fields, dog park, play/BBQ area and Swim Beach ~ This is a wonderful spot to watch the 4th of July fireworks show and you can be home before most people even reach their cars ~ The huge foyer has high ceilings and tons of space to remove all of your snow play gear ~ The first floor has a large bedroom with its own bathroom and deck, with spa hook-ups next to it, and the 2 car side of the 3 car garage, that is currently being used as a massive game room ~ The stairs to the second floor are nice and wide ~ On the second floor you have vaulted tongue & groove ceilings over the open living room that features a granite fireplace and front deck that stretches across the front of the house ~ The open kitchen boasts granite countertops, that match the fireplace, and stainless steel appliances ~ Off the dining area you have your third deck that overlooks the backyard and is perfect for BBQing ~ On this floor you also have the master bedroom and bathroom with separate tub and shower as well as his & her sinks set into granite countertops and the 3rd bedroom with its own bathroom with granite countertop and the laundry room ~ All of this and just a 7 minute drive from the ski slopes and Village ~ If you want an amazing home in a highly sought after neighborhood that is walking distance to the lake, then this is the one for you!
Property Details
Price:
$799,900
MLS #:
IG25250718
Status:
Active
Beds:
3
Baths:
3
Type:
Single Family
Subtype:
Single Family Residence
Neighborhood:
289
Listed Date:
Nov 1, 2025
Finished Sq Ft:
2,297
Lot Size:
7,249 sqft / 0.17 acres (approx)
Year Built:
2004
See this Listing
Schools
School District:
Bear Valley Unified
Interior
Appliances
DW, GD, MW, RF, GO, GR, GS, GWH
Bathrooms
3 Full Bathrooms
Cooling
CA, GAS
Flooring
LAM, CARP
Heating
GAS, CF
Laundry Features
IR
Exterior
Architectural Style
CB
Community Features
BLM, HRS, MTN, GOLF, LAKE, PARK, FISH, WATE, HIKI, BIKI, DGP
Parking Spots
7
Roof
CMP
Financial
Map
Community
- AddressOriole Lot 43 Big Bear Lake CA
- CityBig Bear Lake
- CountySan Bernardino
- Zip Code92315
Market Summary
Current real estate data for Single Family in Big Bear Lake as of Nov 04, 2025
126
Single Family Listed
67
Avg DOM
424
Avg $ / SqFt
$706,798
Avg List Price
Property Summary
- Oriole Lot 43 Big Bear Lake CA is a Single Family for sale in Big Bear Lake, CA, 92315. It is listed for $799,900 and features 3 beds, 3 baths, and has approximately 2,297 square feet of living space, and was originally constructed in 2004. The current price per square foot is $348. The average price per square foot for Single Family listings in Big Bear Lake is $424. The average listing price for Single Family in Big Bear Lake is $706,798.
Similar Listings Nearby
Oriole Lot 43
Big Bear Lake, CA





















































