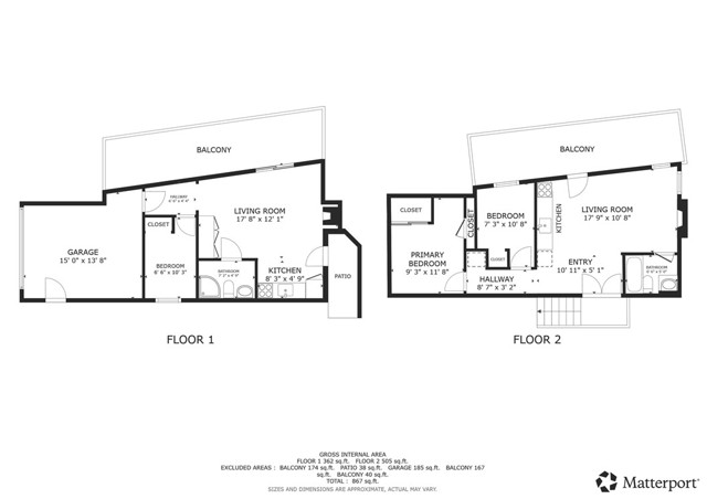
“2024” Multi-Level, Lakefront Chalet With Your Own Private Dock! Perfect Location on Boulder Bay With Expansive Sunset Views of the Lake and Forest Beyond! Wrap-Around Balcony to Enjoy The Fresh Air With Your Favorite View and Beverage! Gourmet Kitchen Fully Equipped for the Culinary Enthusiast Requiring A View! Nice Open Concept Living and Dining Rooms With A Cozy Wood-Burning Fireplace! Convenient Inside Laundry!
Beautiful Cozy Bedrooms With More Million Dollar Views! Boasts a 1 Car Garage With an Electric Car Outlet, Overhead Storage and Direct Access! Remote Heated Driveway and Heated Guest Parking Spot! Dockside Sand Beach Patio With A Fire Pit, Perfect for Relaxation, S’mores, and Sunset Views After A Day On The Water! One Level Up and You Can Slip Into Your Lakeview Hot Tub! Central Air, Gas Heat And Water Conditioner! 1st Floor Bedroom, Bath, Living Room and Kitchenette With More Fabulous Views! (Could be used separately). Heavily Booked Short-Term Rental When The Owners Aren’t Using or Improving! Big Bear Lake offers diverse attractions including winter sports at ski resorts, year-round family fun at the Alpine Slide and Magic Mountain Recreation Area, water activities like fishing and boating on the lake, hiking scenic trails, visiting the Big Bear Alpine Zoo, and exploring The Village at Big Bear Lake for shopping and dining.
Beautiful Cozy Bedrooms With More Million Dollar Views! Boasts a 1 Car Garage With an Electric Car Outlet, Overhead Storage and Direct Access! Remote Heated Driveway and Heated Guest Parking Spot! Dockside Sand Beach Patio With A Fire Pit, Perfect for Relaxation, S’mores, and Sunset Views After A Day On The Water! One Level Up and You Can Slip Into Your Lakeview Hot Tub! Central Air, Gas Heat And Water Conditioner! 1st Floor Bedroom, Bath, Living Room and Kitchenette With More Fabulous Views! (Could be used separately). Heavily Booked Short-Term Rental When The Owners Aren’t Using or Improving! Big Bear Lake offers diverse attractions including winter sports at ski resorts, year-round family fun at the Alpine Slide and Magic Mountain Recreation Area, water activities like fishing and boating on the lake, hiking scenic trails, visiting the Big Bear Alpine Zoo, and exploring The Village at Big Bear Lake for shopping and dining.
Property Details
Price:
$1,199,000
MLS #:
PW25215613
Status:
Active
Beds:
3
Baths:
2
Type:
Single Family
Subtype:
Single Family Residence
Neighborhood:
289bigbeararea
Listed Date:
Nov 28, 2025
Finished Sq Ft:
1,000
Lot Size:
2,892 sqft / 0.07 acres (approx)
Year Built:
2024
See this Listing
Schools
School District:
Bear Valley Unified
Middle School:
Big Bear
High School:
Big Bear
Interior
Appliances
DW, GD, MW, RF, HOD
Bathrooms
2 Full Bathrooms
Cooling
CA
Flooring
SEE
Heating
FA
Laundry Features
IN, STK, WH
Exterior
Architectural Style
CB
Community Features
RUR, MTN, LAKE, PARK, WATE
Exterior Features
DO
Parking Spots
3
Roof
CMP
Security Features
SD, COD
Financial
Map
Community
- Address808 Penninsula LN Lot 82 Big Bear Lake CA
- CityBig Bear Lake
- CountySan Bernardino
- Zip Code92315
Market Summary
Current real estate data for Single Family in Big Bear Lake as of Dec 03, 2025
122
Single Family Listed
77
Avg DOM
443
Avg $ / SqFt
$731,815
Avg List Price
Property Summary
- 808 Penninsula LN Lot 82 Big Bear Lake CA is a Single Family for sale in Big Bear Lake, CA, 92315. It is listed for $1,199,000 and features 3 beds, 2 baths, and has approximately 1,000 square feet of living space, and was originally constructed in 2024. The current price per square foot is $1,199. The average price per square foot for Single Family listings in Big Bear Lake is $443. The average listing price for Single Family in Big Bear Lake is $731,815.
Similar Listings Nearby
808 Penninsula LN Lot 82
Big Bear Lake, CA


































































