There are multiple listings for this address:
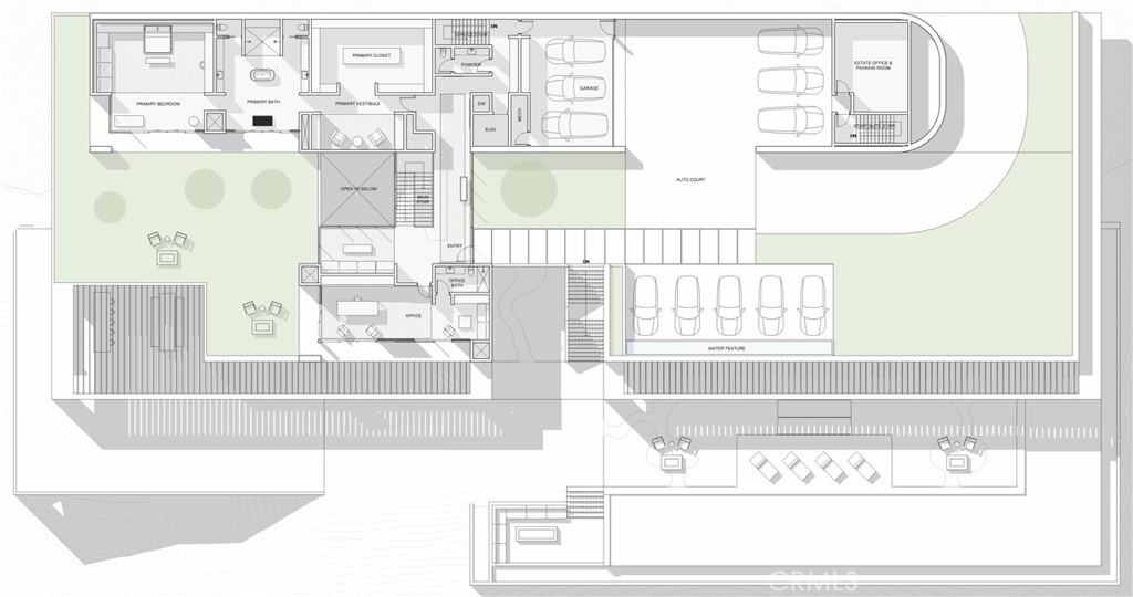
Beverly Hills Luxury Estate Site Hits the Auction Block! Don’t miss the bankruptcy auction of one of Beverly Hills’ most coveted development sites: a spectacular estate in the exclusive, guard- gated Bella Vista Estates. This is a rare opportunity for a homeowner, investor or developer to build a one-of-a-kind estate in one of Los Angeles’ most exclusive enclaves. The 3.2-acre site includes detailed architectural plans for a 25,000+ s.f. ultra luxury estate. Designed for elevated living and grand scale entertaining, the planned estate features 5 Bedrooms, 2 Guest or Staff Suites,8 Full Bathrooms, 7 Half Bathrooms, 11 Car Garage, Private Theater, Gym with Spa, Wraparound Pool, and Expansive views of hills and valleys towards Beverly Hills.
The guarded community of Bella Vista Estates is truly one of the most private, secure and prestigious enclaves in Los Angeles. With gorgeous architectural plans, grading underway, and panoramic views, this site is ready for a visionary buyer to bring a luxury estate to life quickly. Due diligence materials, court approved Bid Procedures, and property information are available upon request
The guarded community of Bella Vista Estates is truly one of the most private, secure and prestigious enclaves in Los Angeles. With gorgeous architectural plans, grading underway, and panoramic views, this site is ready for a visionary buyer to bring a luxury estate to life quickly. Due diligence materials, court approved Bid Procedures, and property information are available upon request
Property Details
Price:
$20,000,000
MLS #:
NP25138687
Status:
Active
Beds:
0
Baths:
0
Type:
Land
Neighborhood:
c01beverlyhills
Listed Date:
Nov 4, 2025
Lot Size:
141,134 sqft / 3.24 acres (approx)
See this Listing
Schools
Interior
Exterior
Community Features
HIKI, BIKI
Financial
Map
Community
- Address2451 Summitridge DR Beverly Hills CA
- CityBeverly Hills
- CountyLos Angeles
- Zip Code90077
Market Summary
Current real estate data for Land in Beverly Hills as of Dec 16, 2025
4
Land Listed
34
Avg DOM
$7,366,250
Avg List Price
Property Summary
- 2451 Summitridge DR Beverly Hills CA is a Land for sale in Beverly Hills, CA, 90077. It is listed for $20,000,000 and features 3 acres.
Similar Listings Nearby
2451 Summitridge DR
Beverly Hills, CA
Beverly Hills Luxury Estate Site Hits the Auction Block! Don’t miss the bankruptcy auction of one of Beverly Hills’ most coveted development sites: a spectacular estate in the exclusive, guard- gated Bella Vista Estates. This is a rare opportunity for a homeowner, investor or developer to build a one-of-a-kind estate in one of Los Angeles’ most exclusive enclaves. The 3.2-acre site includes detailed architectural plans for a 25,000+ s.f. ultra luxury estate. Designed for elevated living and grand scale entertaining, the planned estate features 5 Bedrooms, 2 Guest or Staff Suites,8 Full Bathrooms, 7 Half Bathrooms, 11 Car Garage, Private Theater, Gym with Spa, Wraparound Pool, and Expansive views of hills and valleys towards Beverly Hills.
The guarded community of Bella Vista Estates is truly one of the most private, secure and prestigious enclaves in Los Angeles. With gorgeous architectural plans, grading underway, and panoramic views, this site is ready for a visionary buyer to bring a luxury estate to life quickly. Due diligence materials, court approved Bid Procedures, and property information are available upon request
The guarded community of Bella Vista Estates is truly one of the most private, secure and prestigious enclaves in Los Angeles. With gorgeous architectural plans, grading underway, and panoramic views, this site is ready for a visionary buyer to bring a luxury estate to life quickly. Due diligence materials, court approved Bid Procedures, and property information are available upon request
Property Details
Price:
$20,000,000
MLS #:
NP25161973
Status:
Active
Beds:
0
Baths:
0
Type:
Single Family
Neighborhood:
c01beverlyhills
Listed Date:
Nov 4, 2025
Finished Sq Ft:
25,000
Lot Size:
141,134 sqft / 3.24 acres (approx)
See this Listing
Schools
Interior
Exterior
Community Features
HIKI, BIKI
Financial
Map
Community
- Address2451 Summitridge DR Beverly Hills CA
- CityBeverly Hills
- CountyLos Angeles
- Zip Code90077
Market Summary
Current real estate data for Single Family in Beverly Hills as of Dec 16, 2025
4
Single Family Listed
34
Avg DOM
$7,366,250
Avg List Price
Property Summary
- 2451 Summitridge DR Beverly Hills CA is a Single Family for sale in Beverly Hills, CA, 90077. It is listed for $20,000,000 and features 0 beds, 0 baths, and has approximately 25,000 square feet of living space.The current price per square foot is $800. The average listing price for Single Family in Beverly Hills is $7,366,250.









