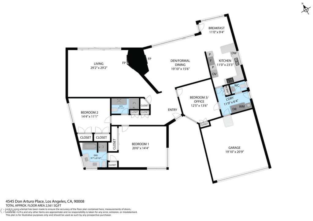
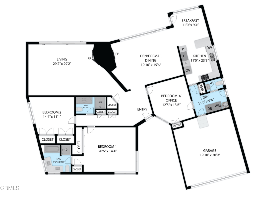
Welcome to ‘The Dons’ in Baldwin Hills Estates, Los Angeles. This property showcases sweeping, uninterrupted vistas of Downtown Los Angeles and the Hollywood Hills from your private rear patio. This single level home features three bedrooms, one thoughtfully transformed into a professional home office equipped with a custom cherry wood desk and cabinetry. Upon arrival, elegant travertine tiles and newly restored wood flooring guide you toward a welcoming den or formal dining room complete with a fireplace and wood-beam ceiling, conveniently located next to the kitchen.The kitchen stands out for its luxurious style and craftsmanship, boasting brand-new high-end appliances, granite countertops and backsplash, soft-close cabinetry, and pull-out drawers. There’s a cozy eating nook just off the kitchen, offering picturesque city views. The spacious primary bedroom includes plantation shutters and an updated ensuite bathroom adorned with marble walls, dual frameless LED anti-fog mirrors above double sinks, a soaking tub, a Thermostatic shower tower, and numerous additional enhancements. The hallway bathroom provides a unique carved vanity with a marble basin, a modernized shower lined with travertine, new hardware, and Venetian plaster finishes.Accessible from the kitchen, the indoor laundry area is fitted with a state-of-the-art Samsung smart side-by-side large capacity washer and dryer, a soaking sink, and a half bath. The attached two-car garage delivers direct entry into the home, along with an automatic opener and interior EV charging station. Throughout the residence are recessed lights (mostly on dimmers), central air conditioning and heating, plantation shutters, and upgraded windows. Take advantage of this chance to lease an exceptional home.
Property Details
Price:
$6,950
MLS #:
P1-24886
Status:
Active
Beds:
3
Baths:
3
Type:
Single Family
Subtype:
Single Family Residence
Listed Date:
Nov 10, 2025
Finished Sq Ft:
2,122
Lot Size:
5,965 sqft / 0.14 acres (approx)
Year Built:
1958
See this Listing
Schools
Middle School:
Audobon
Interior
Appliances
DW, IM, MW, RF, WLR, GS, BIR, CO, DO, WHU
Bathrooms
1 Full Bathroom, 1 Three Quarter Bathroom, 1 Half Bathroom
Cooling
CA
Flooring
TILE, WOOD, CARP
Heating
FA, CF, FIR
Laundry Features
IR, IN, DINC, WINC
Exterior
Architectural Style
RAN, TRD
Community Features
SDW, SL, PARK
Parking Spots
2
Security Features
SD, COD
Financial
Map
Community
- Address4545 Don Arturo PL Lot 83 Baldwin Hills CA
- SubdivisionOther
- CityBaldwin Hills
- CountyLos Angeles
- Zip Code90008
Market Summary
Current real estate data for Single Family in Baldwin Hills as of Dec 08, 2025
1
Single Family Listed
28
Avg DOM
3
Avg $ / SqFt
$6,950
Avg List Price
Property Summary
- Located in the Other subdivision, 4545 Don Arturo PL Lot 83 Baldwin Hills CA is a Single Family for sale in Baldwin Hills, CA, 90008. It is listed for $6,950 and features 3 beds, 3 baths, and has approximately 2,122 square feet of living space, and was originally constructed in 1958. The current price per square foot is $3. The average price per square foot for Single Family listings in Baldwin Hills is $3. The average listing price for Single Family in Baldwin Hills is $6,950.
Similar Listings Nearby
4545 Don Arturo PL Lot 83
Baldwin Hills, CA
























































