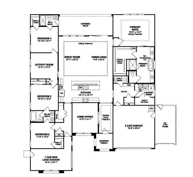
Welcome to Vista del Sol, a premier community of luxury homes where timeless style, everyday comfort, and ultimate convenience come together. Perfectly situated near shopping, dining, and outdoor recreation, this sought-after neighborhood is designed for those who value beautiful living with everything close at hand. Step into the exceptional Austin plan, a spacious and thoughtfully designed single-story home offering 4 bedrooms, 3.5 bathrooms, and a private home office. Whether you’re working remotely, entertaining guests, or relaxing with loved ones, this home offers the flexibility and elegance to support every aspect of your lifestyle. Curated with warm, rustic Farmhouse-inspired interior finishes, the Austin plan blends character and sophistication. The gourmet kitchen is a chef’s dream, featuring Stone Grey cabinetry, striking Artic White quartz countertops, a stylish tile backsplash, and premium GE Profile stainless-steel appliances. The oversized island connects seamlessly to the airy great room and adjacent covered patio perfect for effortless indoor-outdoor entertaining. A private home office provides a quiet and inspiring space to work or unwind, while the thoughtfully designed split-bedroom layout ensures optimal privacy. The luxurious Primary Suite is your personal retreat, complete with a spa-like bath featuring dual vanities, a spacious walk-in shower, and an expansive walk-in closet. Two additional bedrooms are connected by a versatile Activity Room that is ideal as a study zone, game room, or creative space. A fourth bedroom with its own full bath offers comfort and privacy for guests or multi-generational living. From the premium finishes to the flexible layout, the Austin plan is designed to exceed expectations. Come home to Vista del Sol where luxury meets livability and every detail reflects inspired design. *Prices subject to change.
Property Details
Price:
$699,990
MLS #:
SW25187194
Status:
A
Beds:
4
Baths:
4
Type:
Single Family
Subtype:
Single Family Residence
Neighborhood:
appv
Listed Date:
Aug 19, 2025
Finished Sq Ft:
2,932
Lot Size:
949,346,640 sqft / 21,794.00 acres (approx)
Year Built:
2025
See this Listing
Schools
School District:
Apple Valley Unified
Interior
Appliances
DW, GD, MW, ESA, GR, DO, WHU
Bathrooms
3 Full Bathrooms, 1 Half Bathroom
Cooling
CA
Flooring
TILE, LAM, CARP
Heating
GAS, CF
Laundry Features
IR, IN
Exterior
Architectural Style
MED
Community Features
SUB
Construction Materials
STC, FRM
Parking Spots
3
Roof
TLE
Security Features
SD, COD, FS
Financial
HOA Fee
$150
HOA Frequency
MO
Map
Community
- AddressTa-Ki-Pi RD Lot 0095 Apple Valley CA
- CityApple Valley
- CountySan Bernardino
- Zip Code92307
Subdivisions in Apple Valley
Market Summary
Current real estate data for Single Family in Apple Valley as of Oct 29, 2025
306
Single Family Listed
57
Avg DOM
232
Avg $ / SqFt
$501,278
Avg List Price
Property Summary
- Ta-Ki-Pi RD Lot 0095 Apple Valley CA is a Single Family for sale in Apple Valley, CA, 92307. It is listed for $699,990 and features 4 beds, 4 baths, and has approximately 2,932 square feet of living space, and was originally constructed in 2025. The current price per square foot is $239. The average price per square foot for Single Family listings in Apple Valley is $232. The average listing price for Single Family in Apple Valley is $501,278.
Similar Listings Nearby
Ta-Ki-Pi RD Lot 0095
Apple Valley, CA



