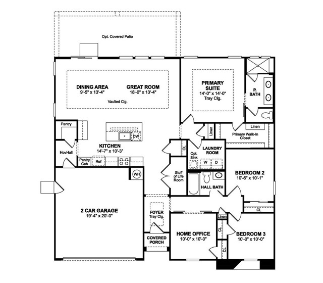
Discover the Adriatic plan at Palo Verde by K. Hovnanian Homes, where timeless design meets modern living. This thoughtfully crafted single-story home offers 3 spacious bedrooms, 2 baths, and a private home office perfect for today’s lifestyle. The light-filled great room with vaulted ceilings creates a warm, inviting space for entertaining or unwinding in comfort. The gourmet kitchen is a true showpiece, featuring rich Vintage-stained cabinets with Flat Black hardware, Arctic White quartz countertops, a large center island with sink, and sleek stainless-steel gas appliances ideal for both everyday meals and special occasions. The serene primary suite provides a private retreat with a spa-inspired bath and a generous walk-in closet. Every detail has been designed with beauty and functionality in mind, offering an effortless balance of sophistication and comfort. At Palo Verde, the Adriatic plan is more than a home it’s the lifestyle you’ve been waiting for. ***Prices subject to change.
Property Details
Price:
$527,990
MLS #:
SW25239483
Status:
Active
Beds:
3
Baths:
2
Type:
Single Family
Subtype:
Single Family Residence
Neighborhood:
hsp
Listed Date:
Oct 15, 2025
Finished Sq Ft:
1,760
Lot Size:
8,864 sqft / 0.20 acres (approx)
Year Built:
2025
See this Listing
Schools
School District:
Hesperia Unified
Interior
Appliances
DW, GD, MW, GR, FSR, EWH, HOD, SCO
Bathrooms
2 Full Bathrooms
Cooling
CA
Flooring
TILE, VINY, CARP
Heating
CF
Laundry Features
GAS, IR, IN, WH
Exterior
Architectural Style
MED
Community Features
SUB
Construction Materials
STC, DWAL, FRM
Parking Spots
2
Financial
Map
Community
- AddressBaylor AV Lot 1007 Hesperia CA
- CityHesperia
- CountySan Bernardino
- Zip Code92344
Market Summary
Current real estate data for Single Family in Hesperia as of Nov 02, 2025
275
Single Family Listed
49
Avg DOM
257
Avg $ / SqFt
$463,767
Avg List Price
Property Summary
- Baylor AV Lot 1007 Hesperia CA is a Single Family for sale in Hesperia, CA, 92344. It is listed for $527,990 and features 3 beds, 2 baths, and has approximately 1,760 square feet of living space, and was originally constructed in 2025. The current price per square foot is $300. The average price per square foot for Single Family listings in Hesperia is $257. The average listing price for Single Family in Hesperia is $463,767.
Similar Listings Nearby
Baylor AV Lot 1007
Hesperia, CA















