4BD/3BA + guest cottage & workshop on 1.14 lush, private acres. Nestled behind a private gate at the end of Oak Haven Lane, this 4 bedroom, 3 bathroom home on 1.14 acre offers gorgeous views of the surrounding hills and peaceful, Zen like setting. The charming, detached cottage is 1 bed/1 bath (not included in sq footage or bedroom/bath count) features A/C, Trex deck, and views of the gardens.
Thoughtfully landscaped and lovingly curated over the past 20 years, the lush, oak-studded grounds offer a meditative retreat feel with a calming koi pond and waterfall, fairy and butterfly gardens, meandering meditation paths, multiple flagstone walkways, decks, raised beds, fruit trees including avocado, orange, and apple, sitting areas, bird feeding stations and all of it privately enclosed by 8-foot deer fencing.
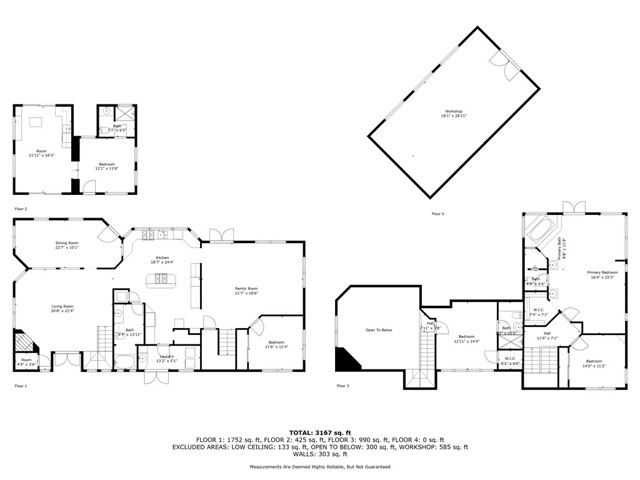
With stunning natural pine interiors and abundant windows that bring in natural light and breathtaking views from every room, this is Central Coast living at its finest. The kitchen boasts extensive counter and cabinet space, premium DCS cooktop with griddle, a separate warming drawer, walk in pantry, breakfast bar, under-sink R/O system and inspiring views of the hills and gardens below. Separate dining room offers plenty of space for memorable gatherings. The family room creates an ambiance of comfort and relaxation. The open living room features soaring wood-beamed ceilings, a grand fireplace, and panoramic garden views.
Upstairs, the oversized primary suite offers a walk-in closet, a private seating area, dual sinks, jetted tub, walk-in shower, and a spacious private balcony overlooking the gorgeous landscape and surrounding hills. Three additional bedrooms are thoughtfully positioned for guests or family.
Enjoy the large covered front porch surrounded by lush greenery or relax on the sunny deck that overlooks multiple gardens. Lovingly designed to be beautiful in every season.
From the Cottage, a flagstone path leads to a rustic garden shed and steps down to the koi pond and butterfly garden. Up above, is an area for additional parking including a 2-car carport. Next to the carport is a large workshop with its own deck and seating area and down below is a large shed for additional storage.
This is the ultimate private escape, yet just minutes from the Village of Arroyo Grande and the scenic back way into San Luis Obispo.
Thoughtfully landscaped and lovingly curated over the past 20 years, the lush, oak-studded grounds offer a meditative retreat feel with a calming koi pond and waterfall, fairy and butterfly gardens, meandering meditation paths, multiple flagstone walkways, decks, raised beds, fruit trees including avocado, orange, and apple, sitting areas, bird feeding stations and all of it privately enclosed by 8-foot deer fencing.
With stunning natural pine interiors and abundant windows that bring in natural light and breathtaking views from every room, this is Central Coast living at its finest. The kitchen boasts extensive counter and cabinet space, premium DCS cooktop with griddle, a separate warming drawer, walk in pantry, breakfast bar, under-sink R/O system and inspiring views of the hills and gardens below. Separate dining room offers plenty of space for memorable gatherings. The family room creates an ambiance of comfort and relaxation. The open living room features soaring wood-beamed ceilings, a grand fireplace, and panoramic garden views.
Upstairs, the oversized primary suite offers a walk-in closet, a private seating area, dual sinks, jetted tub, walk-in shower, and a spacious private balcony overlooking the gorgeous landscape and surrounding hills. Three additional bedrooms are thoughtfully positioned for guests or family.
Enjoy the large covered front porch surrounded by lush greenery or relax on the sunny deck that overlooks multiple gardens. Lovingly designed to be beautiful in every season.
From the Cottage, a flagstone path leads to a rustic garden shed and steps down to the koi pond and butterfly garden. Up above, is an area for additional parking including a 2-car carport. Next to the carport is a large workshop with its own deck and seating area and down below is a large shed for additional storage.
This is the ultimate private escape, yet just minutes from the Village of Arroyo Grande and the scenic back way into San Luis Obispo.
Property Details
Price:
$1,999,998
MLS #:
PI25146117
Status:
Active
Beds:
4
Baths:
3
Type:
Single Family
Subtype:
Single Family Residence
Subdivision:
East of 101500
Neighborhood:
arrg
Listed Date:
Oct 31, 2025
Finished Sq Ft:
2,754
Lot Size:
49,658 sqft / 1.14 acres (approx)
Year Built:
1981
See this Listing
Schools
School District:
Lucia Mar Unified
Elementary School:
Branch
Middle School:
Paulding
High School:
Arroyo Grande
Interior
Appliances
TC, TW, WOD
Bathrooms
2 Full Bathrooms, 1 Three Quarter Bathroom
Cooling
SEE
Flooring
TILE, WOOD
Heating
FA, WL, FIR
Laundry Features
IR, IN
Exterior
Architectural Style
SEE
Community Features
LAKE, HIKI
Construction Materials
WOD
Exterior Features
KP
Other Structures
SHP, SH
Parking Spots
7
Roof
CMP
Security Features
AG
Financial
Map
Community
- AddressOak Haven LN Lot 13 Arroyo Grande CA
- SubdivisionEast of 101(500)
- CityArroyo Grande
- CountySan Luis Obispo
- Zip Code93420
Subdivisions in Arroyo Grande
Market Summary
Current real estate data for Single Family in Arroyo Grande as of Nov 02, 2025
50
Single Family Listed
47
Avg DOM
911
Avg $ / SqFt
$1,308,036
Avg List Price
Property Summary
- Located in the East of 101(500) subdivision, Oak Haven LN Lot 13 Arroyo Grande CA is a Single Family for sale in Arroyo Grande, CA, 93420. It is listed for $1,999,998 and features 4 beds, 3 baths, and has approximately 2,754 square feet of living space, and was originally constructed in 1981. The current price per square foot is $726. The average price per square foot for Single Family listings in Arroyo Grande is $911. The average listing price for Single Family in Arroyo Grande is $1,308,036.
Similar Listings Nearby
Oak Haven LN Lot 13
Arroyo Grande, CA


















































































